230㎡四居美式风格普罗旺世
发布时间:
2019年07月17日
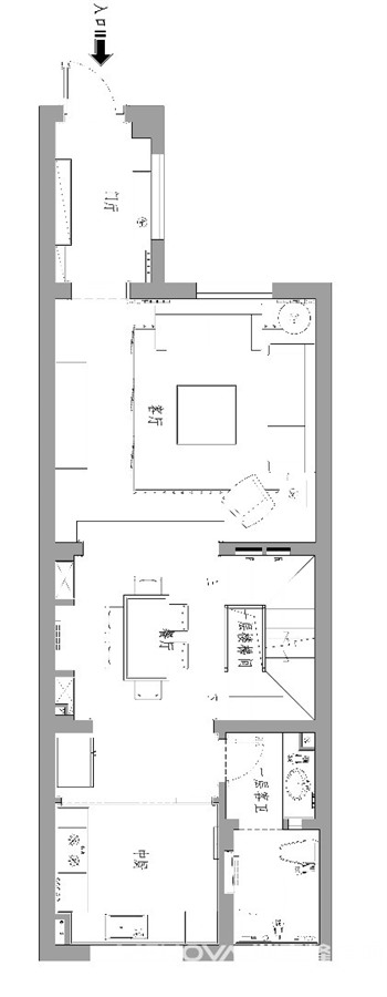
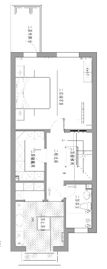
小区:普罗旺世 面积:230㎡ 户型:四居 风格:美式风格
设计说明
案例名称 美式
小区名称 普罗旺世
施工单位 业之峰装饰
面积 230平
居室类型 四室三卫两厅
设计说明 美式家居风格的这些元素也正好迎合了时下的文化资产者对生活方式的需求,即:有文化感、有贵气感,还不能缺乏自在感与情调感。
户型图

餐厅


玄关

客厅



休闲区





京公安网备11010502040911