129㎡三居欧式风格中海铂宫
发布时间:
2019年07月14日
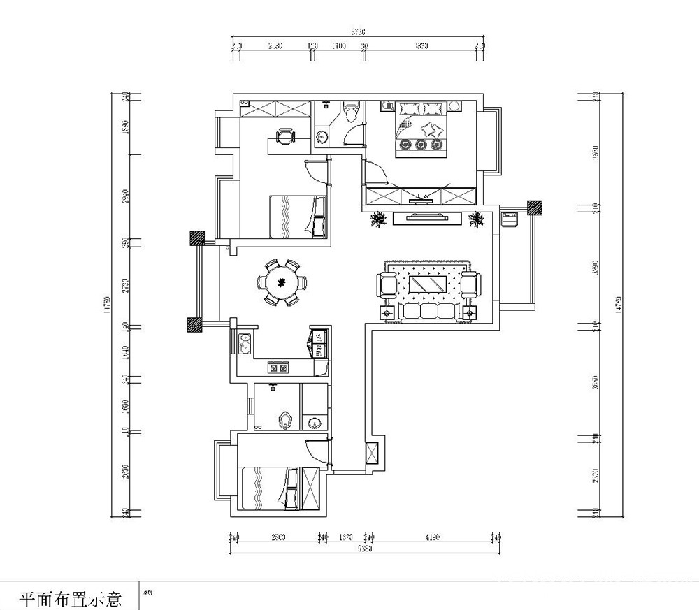
小区:中海铂宫 面积:129㎡ 户型:三居 风格:欧式风格
设计说明
装修热线:0791-86296016,本案例是一对年轻的夫妻,带一小孩,比较中意欧式,在做设计的时候把东面的原厕所位置的墙打掉,做一个多功能房,满足阅读和睡眠的需求,同时还保留了主卧的卫生间位置,公卫用了蹲便,与淋浴错位,功能满足也卫生,户型南北通透,最后效果让人感到舒适温馨的。
户型图

卧室


客厅



儿童房





京公安网备11010502040911