130㎡平层新中式风格龙湖香醍国际社区
发布时间:
2019年07月09日
小区:龙湖香醍国际社区 面积:130㎡ 户型:平层 风格:新中式风格
设计说明
除去复杂的装饰,空间装饰多采用简洁硬朗的直线条。直线条在空间中的使用,不仅反映出现代人追求简单生活的居住要求,更迎合了中式家具追求内敛、质朴的设计风格,使“新中式”更加实用、更富现代感。
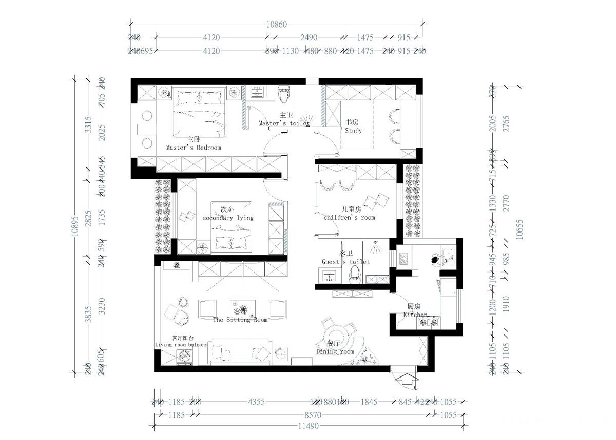
户型图

玄关

客厅




餐厅

卧室





京公安网备11010502040911