113㎡三居后现代风格滨河城
发布时间:
2019年07月07日
小区:滨河城 面积:113㎡ 户型:三居 风格:后现代风格
设计说明
随着流行元素的改变,后现代装修风格中常常会使用到一些大胆的几何图案,对比性和明亮度非常强烈。在家居装饰上使用到的都是一些新型装修材料,从视觉上给人一种强烈的冲击感。房子的主人是两个刚结婚的年轻人,特别喜欢黑白灰的大气感。
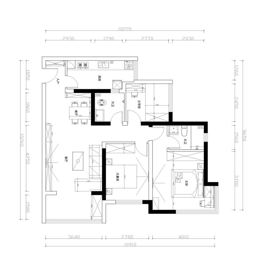
户型图

卧室



玄关

卫生间

餐厅


休闲区

客厅





厨房





京公安网备11010502040911