140㎡三居简欧风格象湖壹号
发布时间:
2019年07月04日
小区:象湖壹号 面积:140㎡ 户型:三居 风格:简欧风格
设计说明
案例名称 象湖壹号140平米简欧效果图 小区名称:融创美盛象湖壹号 施工单位郑州业之峰装饰 设计说明:形散神聚是新古典风格的主要特点.在注重装饰效果的同时,用现代的手法 和材质还原古典气质,新古典风格具备了古典与现代的双重审美效果,完美的结 合也让人们在享受物质文明的同时得到了精神上的慰藉.不可否认,新古典是融 合风格的典型代表,注重线条的搭配以及线条与线条的比例关系.一套好的新古典风格的家居作品,更多地取决于配线和材质的选择。
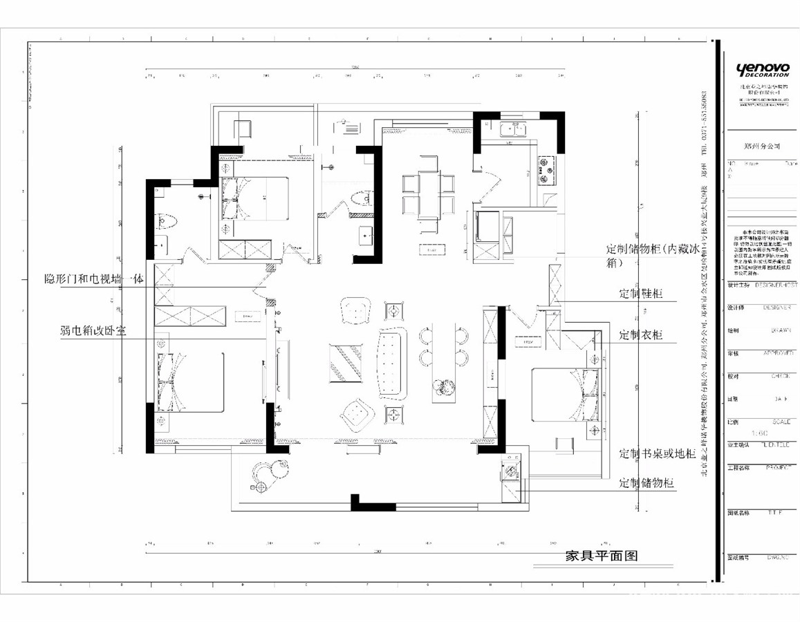
户型图

卧室

客厅


餐厅





京公安网备11010502040911