450㎡别墅新中式风格奥林匹克花园
发布时间:
2019年06月25日
小区:奥林匹克花园 面积:450㎡ 户型:别墅 风格:新中式风格
设计说明
设计总说明:
本案的设计风格为新中式风格,将现代元素与传统元产生的,同时以现代人的观点来体现出与传统中国风格不一样的设计。中式风格装修是具有内蕴的风格,为了舒服,使用到沙发,但颜色仍然体现着中式的古朴,表现使整体空间,传统中透着现代,现代中揉着古典。这样就以一种东方人的“留白”美学观念控制的节奏,显出大家风范,室内多采用对称式的布局方式,格调高雅,造型朴素优美,色彩浓厚而成熟。中国传统室内陈设包括字画、匾幅、屏风、博古架等,追求一种修身养性的生活境界。更显主人的品位与尊贵,体现中国传统家居文化的独特魅力。设计融合了庄重与优雅双重气质,客厅电视背景墙使用了米灰色的大理石两边造型延伸,中间以山水画作为背景。遇见浓郁古典中式长背靠椅来装饰,呈现出大气,沉稳还有朴实。
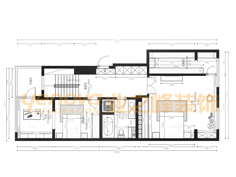
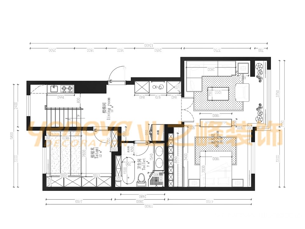
户型图

客厅




餐厅

书房

卧室






京公安网备11010502040911