135㎡四居美式风格其他小区
发布时间:
2019年06月22日
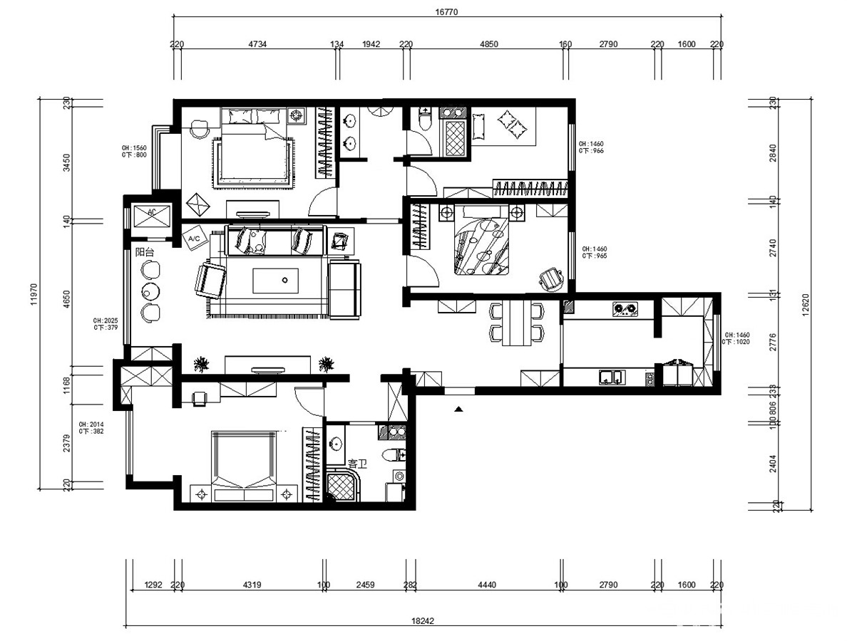
小区:其他小区 面积:135㎡ 户型:四居 风格:美式风格
设计说明
初次相见客户,是一位优雅,气质极佳的中年女性,着装很是讲究。男主人高大有风度,也许因为是军人的关系,两位都给人很亲近、没有距离的感觉。
女主人喜欢安静,舒适,曲线雕花,还比较随意的家居。经过细致的沟通,定位为美式,中暖色调。整个户型面积适中,如果单从使用功能事说,主要常住人口两人,是完全没问题的。但是针对要提高舒适感以及生活品质的空间,需要做更细致的规划。
女主人的衣服偏多,把北卧小屋做衣帽间。喜欢比较深色宽敞讲究的卫生间,因此处理出一个干湿分区的大卫生间,把过道加宽,使每个角落都很大气。
卧室的备用书桌都加上了方便随时翻用电脑及书籍。厨房的阳台用来冷藏一些农产品。在效果方面,美式的家具尺度高,吊顶采用斜面延展空间,使比例更舒适,美式家具的凹凸感较大雕刻使空间更生动,没有那么多矫情的装饰,点到为止。就像人的气质,精致中透露着随性,自我感知最佳即可。
整体以咖色为主,温暖又有品质感,像一杯清浅的咖啡,处处可以品出味道。无论阳光午后还是清晨鸟语,都有不同的美景和氛围,心若安居,人生即美。
户型图

餐厅

客厅




卫生间

卧室





京公安网备11010502040911