150㎡四居港式风格龙湖紫宸
发布时间:
2019年05月26日
小区:龙湖紫宸 面积:150㎡ 户型:四居 风格:港式风格
设计说明
本案现代港式风格,整个空间开敞明亮,开放式西厨增加了空间的通透感,丰富了功能性。石材与金属材质搭配更加凸显稳重华丽气质。
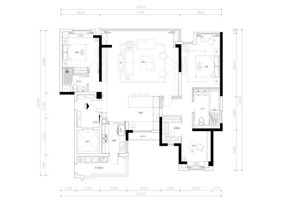
户型图

客厅



卧室

本案现代港式风格,整个空间开敞明亮,开放式西厨增加了空间的通透感,丰富了功能性。石材与金属材质搭配更加凸显稳重华丽气质。




