1026㎡别墅轻奢风格融创长滩壹号
发布时间:
2019年05月25日
小区:融创长滩壹号 面积:1026㎡ 户型:别墅 风格:轻奢风格
设计说明
《欧韵居》
居室一旦披上欧式风韵,
就是用心来打造的空间艺术。
雕刻与绘画,古朴与时尚,
宁静与奢华,宗教与信仰,
自由与激情,尊贵与优雅,
都在立体与层次的交错中展现得淋漓尽至。
居于其中自然倍享雍荣与华贵。
融创长滩壹号项目位于国际城南川大江安校区旁,拥稀缺城市资源配套,项目占据约1.2公里醉美江安河长滩,临河打造10万平米殿堂级滨河生态公园,以“原湾独栋、流水联排、院落叠墅”三大别墅形态,缔造成都约400亩原湾纯别墅社区。业主为一对年轻夫妇,从事化妆护肤品
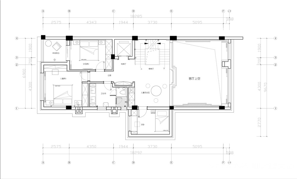
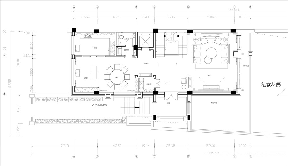
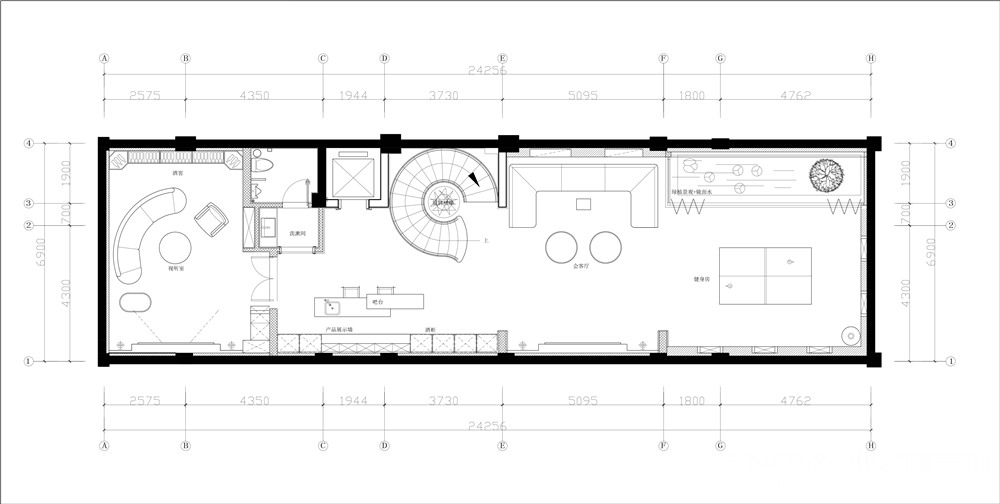
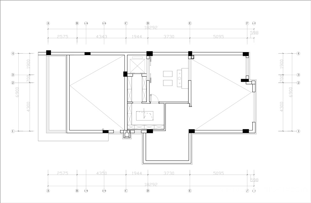
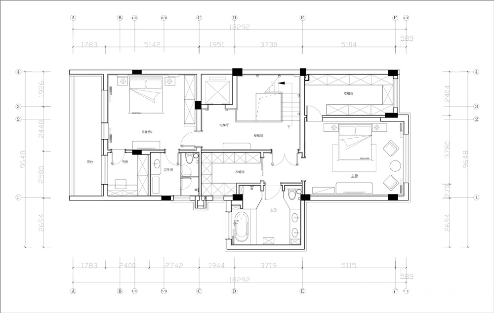
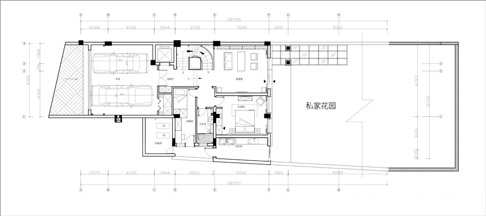
户型图

客厅














书房

卫生间

卧室

餐厅





京公安网备11010502040911