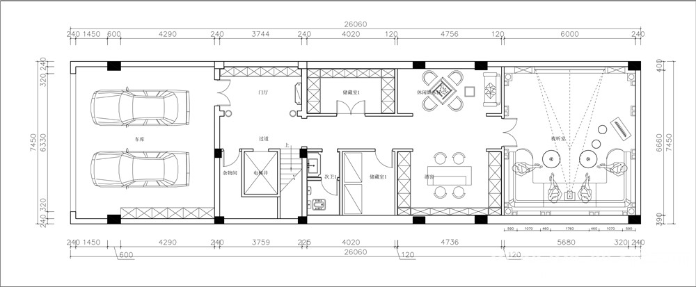
900㎡别墅简欧风格中海城南官邸
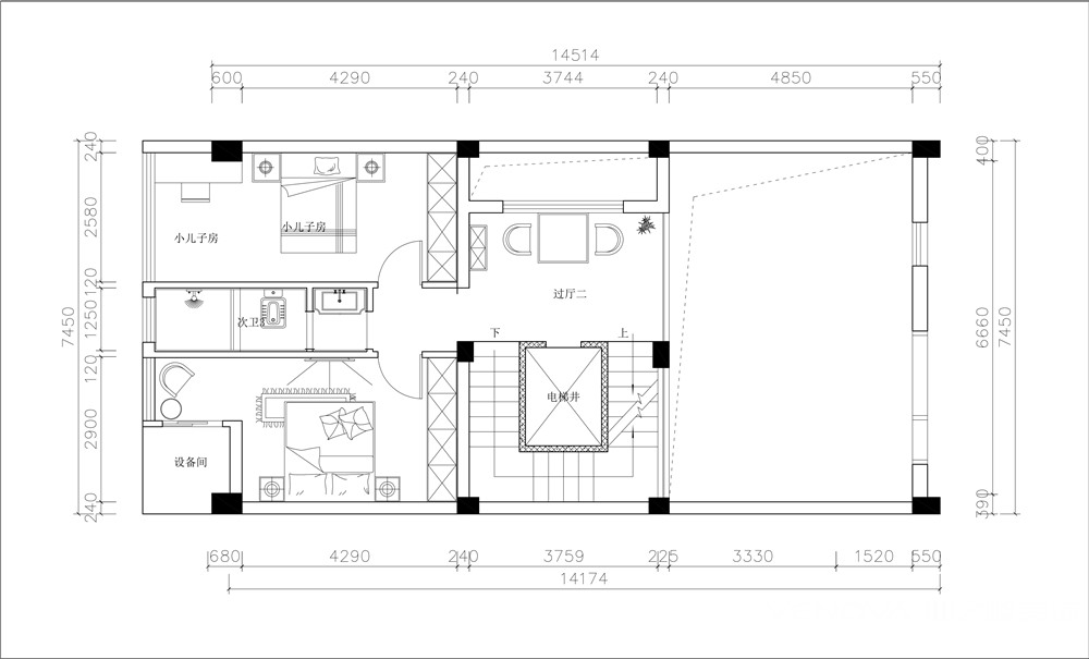
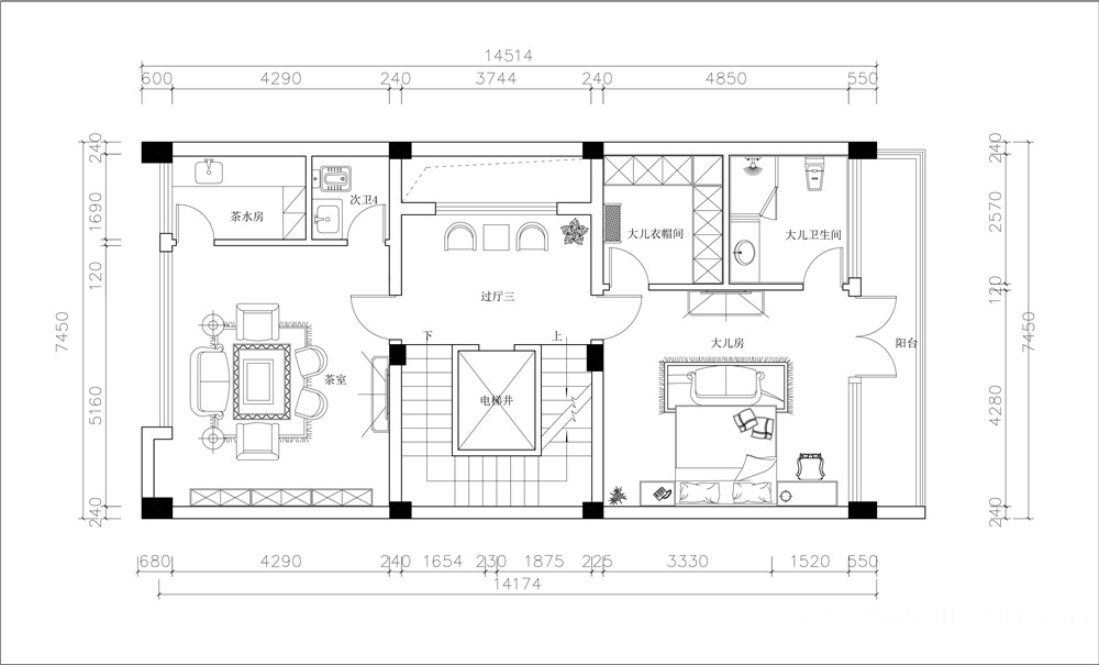
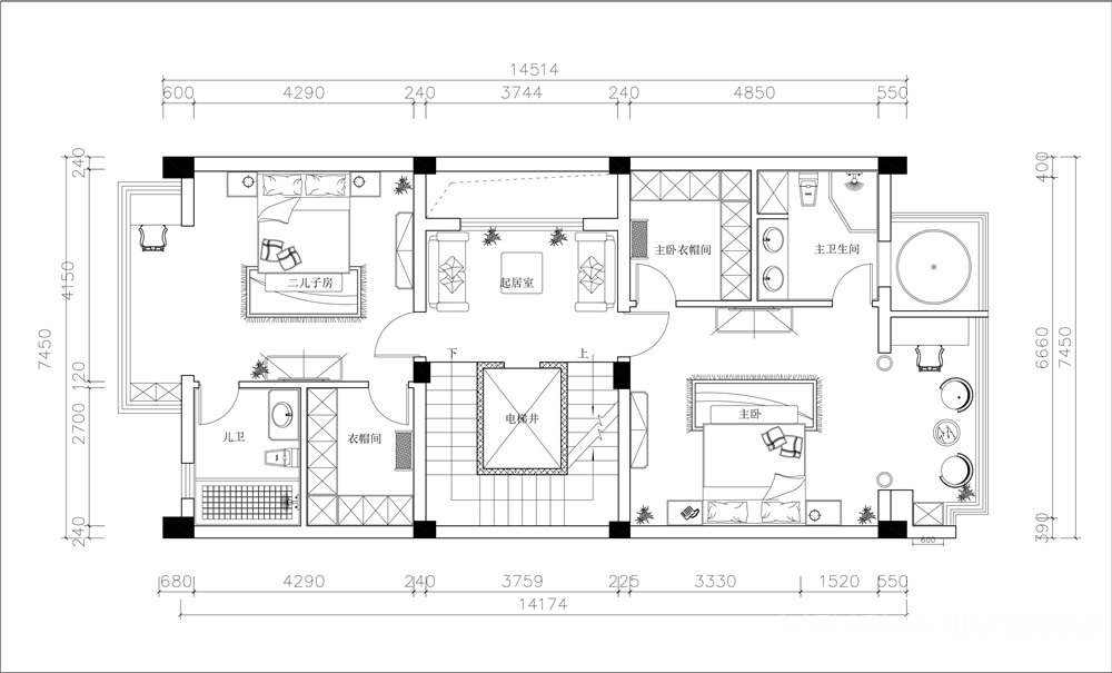
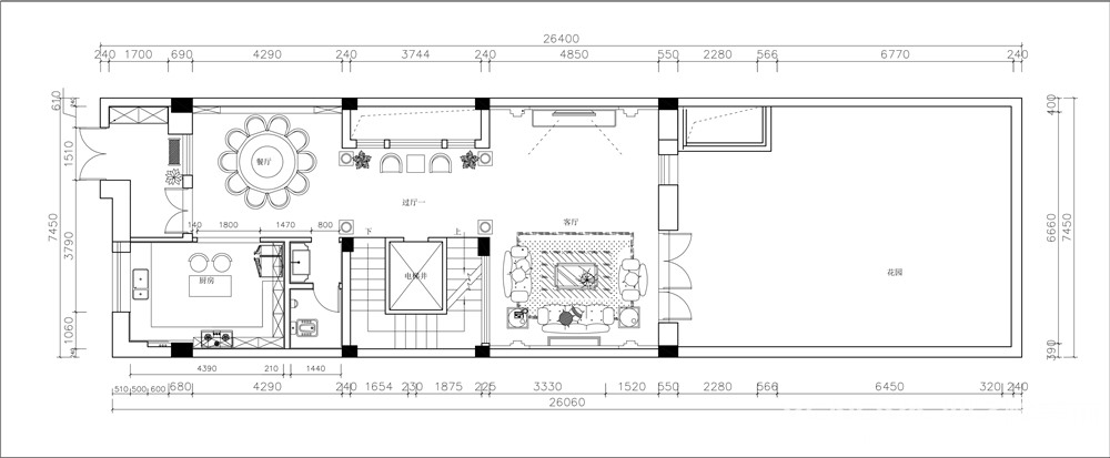
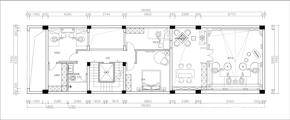
中海城南官邸地处成都市高新区交子大道119号,位于城南黄金地段,交通便捷,环境优美。此案为联排七层别墅,地下两层,地上五层。后方拥有花园,通风采光好,户型方正,结构合理,空间高,是一套不可多得的经典户型。业主为一对年轻夫妇,从事路桥工程的生意人,典型的知识分子,思想活跃,品味高雅,喜欢沉稳内敛的文化底蕴。本方案在设计手法上,设计师充分融合了浓郁的欧陆风情与浪漫的西式情调,同时巧妙地融入了中式简约主义的利落与秀美,同时有意识地掩盖了表面的浮华,恰到好处,只为诠释雅致的居住空间新理念。用浅橙黄色的整体色调,充分体现出业主的文化内涵和生活品质。
进入客厅,刻间便感受到一室的古典与华贵,奢华的水晶吊灯是客厅设计的点睛之笔。在暖棕色的地面大理石拼花的映衬下,淡雅的气息扑面而来。巨大的水晶吊灯、精致的烛台、唯美的石膏像、欧洲风景油画看似毫无规则地随意悬挂着……从细节到整体,每一处微妙的处理,都为空间带来了无限的灵性与贵气。
别墅的餐厅另有一番风味。最显著的特点就是空间高,设计没有改变原始空间结构,而以简单的装饰线条和几何形状将这种风格进行渲染,餐厅顶部的圆形欧式宫廷石膏花盘吊顶造型,典雅精致,搭配上水晶玻璃坠子的吊灯,给人以明亮宽敞的视觉效果。一幅“鸟语花香”的墙纸拼画作为相片墙背景,既温馨又舒适。
主卧中,内敛而低调的浅咖啡色,优雅且不失品味。起居室中,沙发与茶几的摆放得整齐对称,清晰明朗的线条令空间尽显素雅与庄重。设计师将自然与简约巧妙地融为一体,绿色植物不仅带来了灵动的生命气息,还给人以“倦鸟归巢”的归宿感,使向往自然而又无法舍弃繁华都市的人们有种怦然心动的感觉。





















京公安网备11010502040911