190㎡别墅新中式风格御青城
发布时间:
2019年05月25日
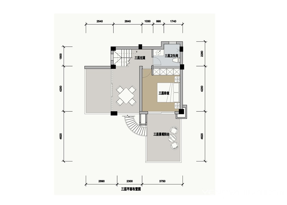
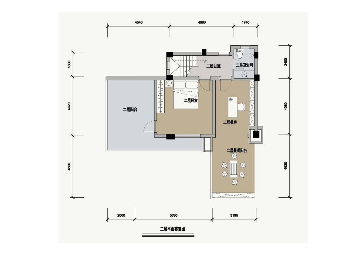
小区:御青城 面积:190㎡ 户型:别墅 风格:新中式风格
设计说明
本案围绕新中式风格为主题,将现代元素和传统元素结合在一起,以当代人的审美需求来打造富有古典韵味的事物,体现一定的文化品味,不仅注重居室的实用性,而且还体现出了现代社会生活的精致与个性,符合现代人的生活品位。
此户型为190平米的别墅,更重视人性化、舒适化,针对功能进行空间层次的分区。在风格上,选择了新中式,![]()
在家具的选材上也多是质朴简约,减去不必要的装饰,从朴素中见高雅。在色彩上,用色调简洁、单一素雅的中性色调来形成自然、简洁淡雅的栖息之地,同时营造出一种温馨、亲切的环境氛围。
客厅












京公安网备11010502040911