300㎡别墅新中式风格都江森林
发布时间:
2019年05月25日
小区:都江森林 面积:300㎡ 户型:别墅 风格:新中式风格
设计说明
此户型位于环境优美交通方便的成都市,本案围绕新中式为主题,以简而不繁的手法把此户型打造成温馨又不失格调的住宅。将现代元素和传统元素结合在一起,以当代人的审美需求来打造富有古典韵味的事物,体现一定的文化品味,不仅注重居室的实用性,而且还体现出了现代社会生活的精致与个性,符合现代人的生活品位。
此户型为300平米的别墅,更重视人性化、舒适化,针对功能进行空间层次的分区。在风格上,选择了新中式,客厅以木制家具为主,但不是复古式的桌椅,而是富有现代感的沙发和茶几。在色彩上以中性色为主色调。在加入很多现代元素,呈现出时尚的特征,又有中国传统文化神韵。
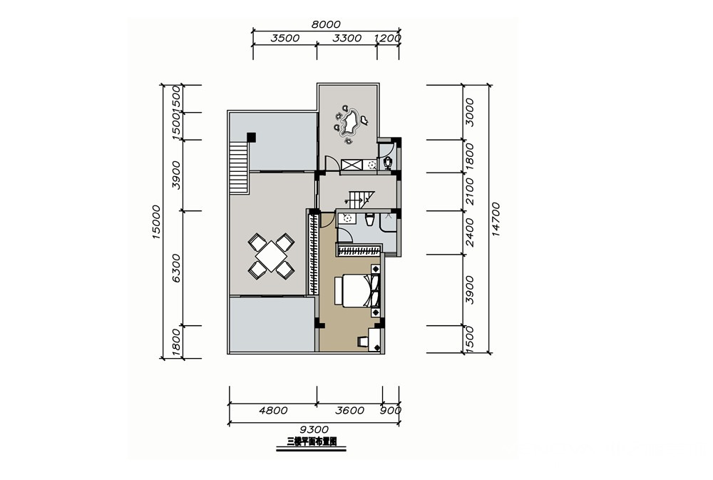
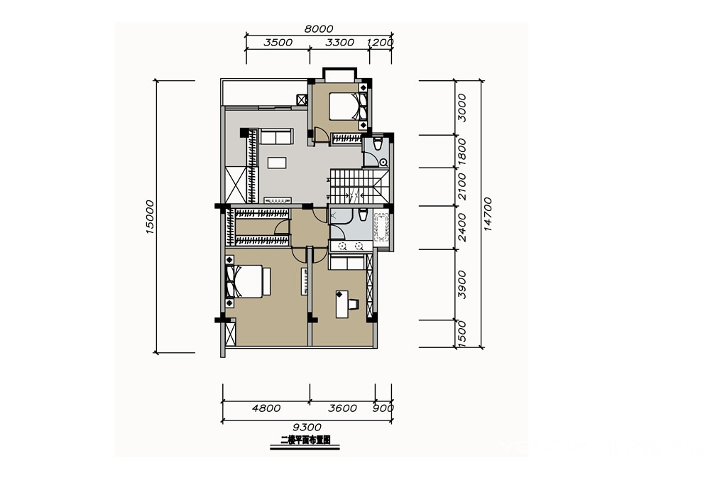
户型图

客厅







餐厅






京公安网备11010502040911