300㎡别墅北欧风格阳光城 半山悦
发布时间:
2019年05月25日
小区:阳光城 半山悦 面积:300㎡ 户型:别墅 风格:北欧风格
设计说明
此户型位于环境优美交通方便的成都市双流县半山悦30-1-2,本案围绕北欧风格为主题,具有简约、自然、人性化的特点。以简单的素色、自然纯朴的色调,打造温馨的氛围。
此户型为300平米的别墅,更重视人性化、舒适化,针对功能进行空间层次的分区。在风格上,选择了北欧风格,![]()
北欧风格是一种简洁流畅的造型,简洁明快的色彩,没有多余的奢华装饰,打造出一种接近自然、安静、温馨的住宅。
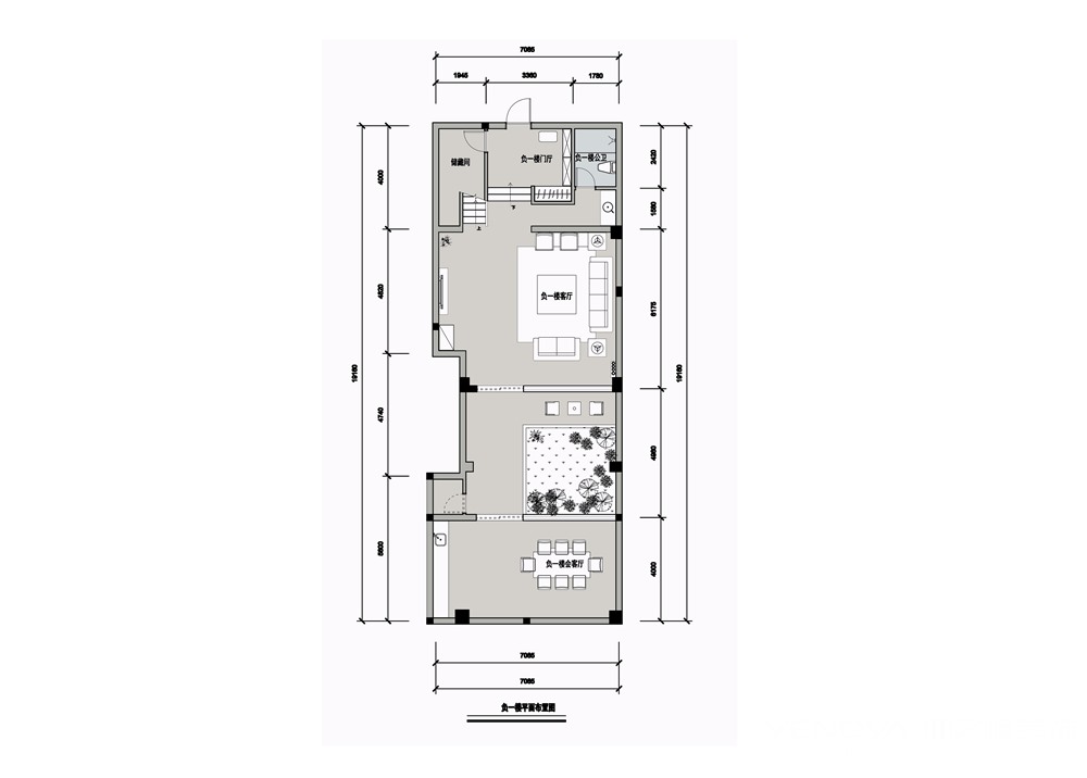
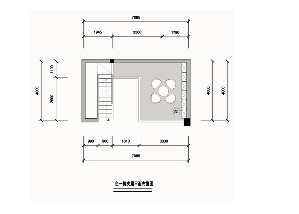
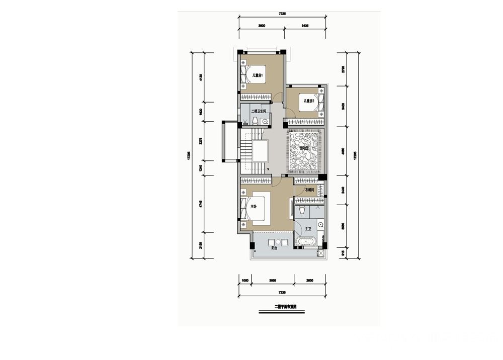
户型图

客厅







卧室

餐厅





京公安网备11010502040911