500㎡别墅简欧风格郦城御园
发布时间:
2019年05月04日
小区:郦城御园 面积:500㎡ 户型:别墅 风格:简欧风格
设计说明
此户型是五层的别墅。本方案在设计上追求功能与形式完美统一,优雅独特,奢华带着富贵。
本设计案例以沉稳的色调为主题,用简单的欧更为简约的现代设计语言诠释浪漫情调的空间氛围。,以及对于传统文化致敬的永恒情节。
地下室的娱乐设施给家人提供了充分的闲暇时光的娱乐
一层的公共休闲空间,得益于自然渗透式的浸润,让那些沉浮于世的疲倦与不安,在这里得到妥帖的安放与慰藉。
设计师通过大面积的落地窗,将光线引入室内,配合素雅的色彩基底,光泽的大理石材质,几何感的绒毛地毯,使室内光线充盈,肌理细腻。
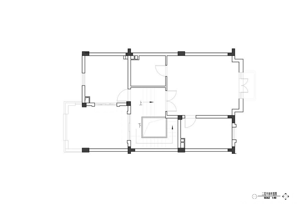
户型图

休闲区






玄关



客厅





















书房



餐厅


卧室






卫生间





京公安网备11010502040911