350㎡别墅简欧风格孔雀城
发布时间:
2019年05月04日
小区:孔雀城 面积:350㎡ 户型:别墅 风格:简欧风格
设计说明
本案以欧式风格为主 偏向古典主义 在把握整体空间上尽量和谐与统一 造型上简洁而不失奢华 色彩上既厚重又不压抑 优雅的设计风格会让人多一份温馨与感动。客厅挑空的设计让空间显得庄重而高贵,光感的顶棚设计,让室内仿若与室外相同的感觉。
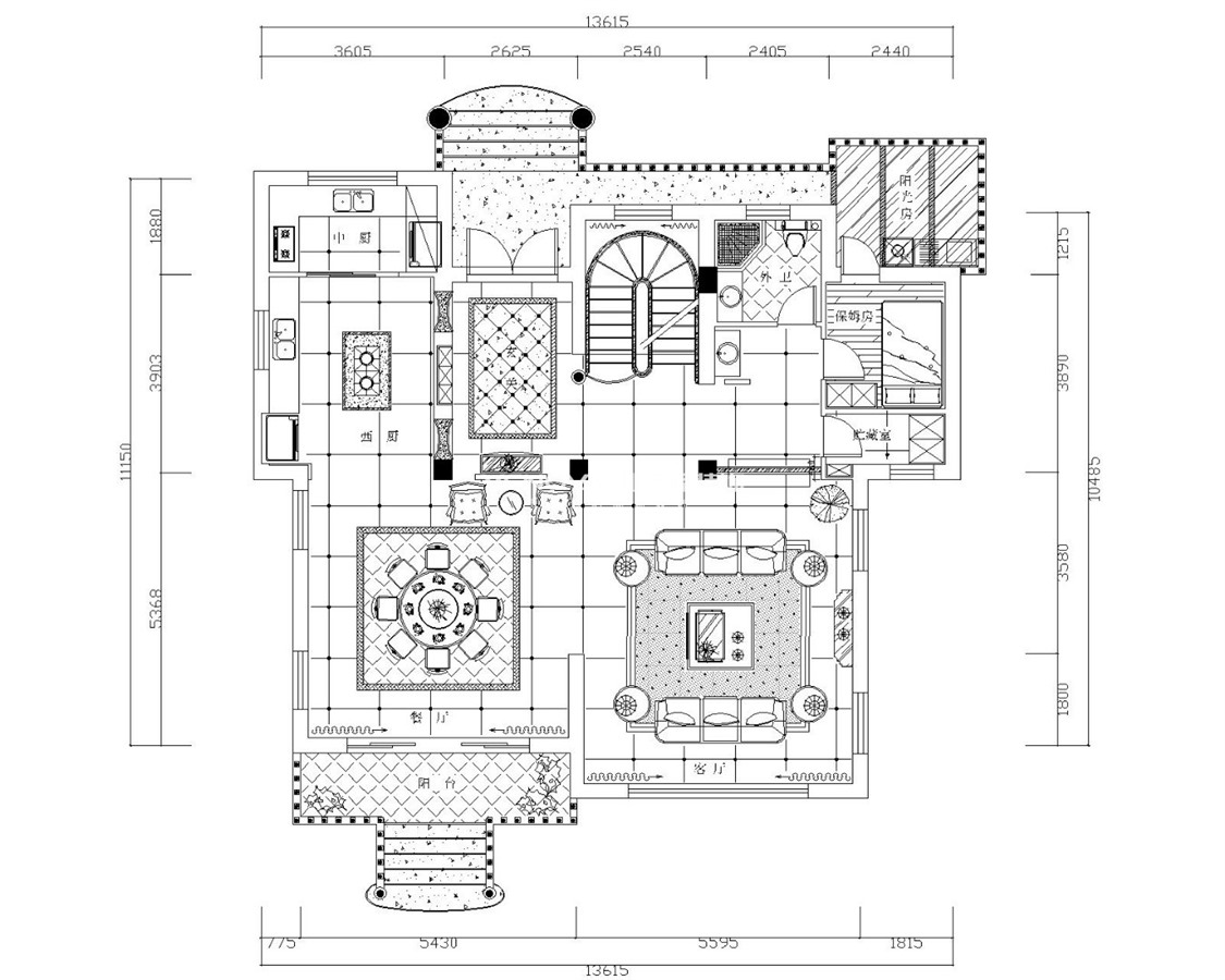
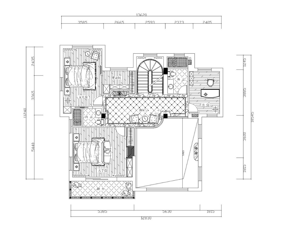
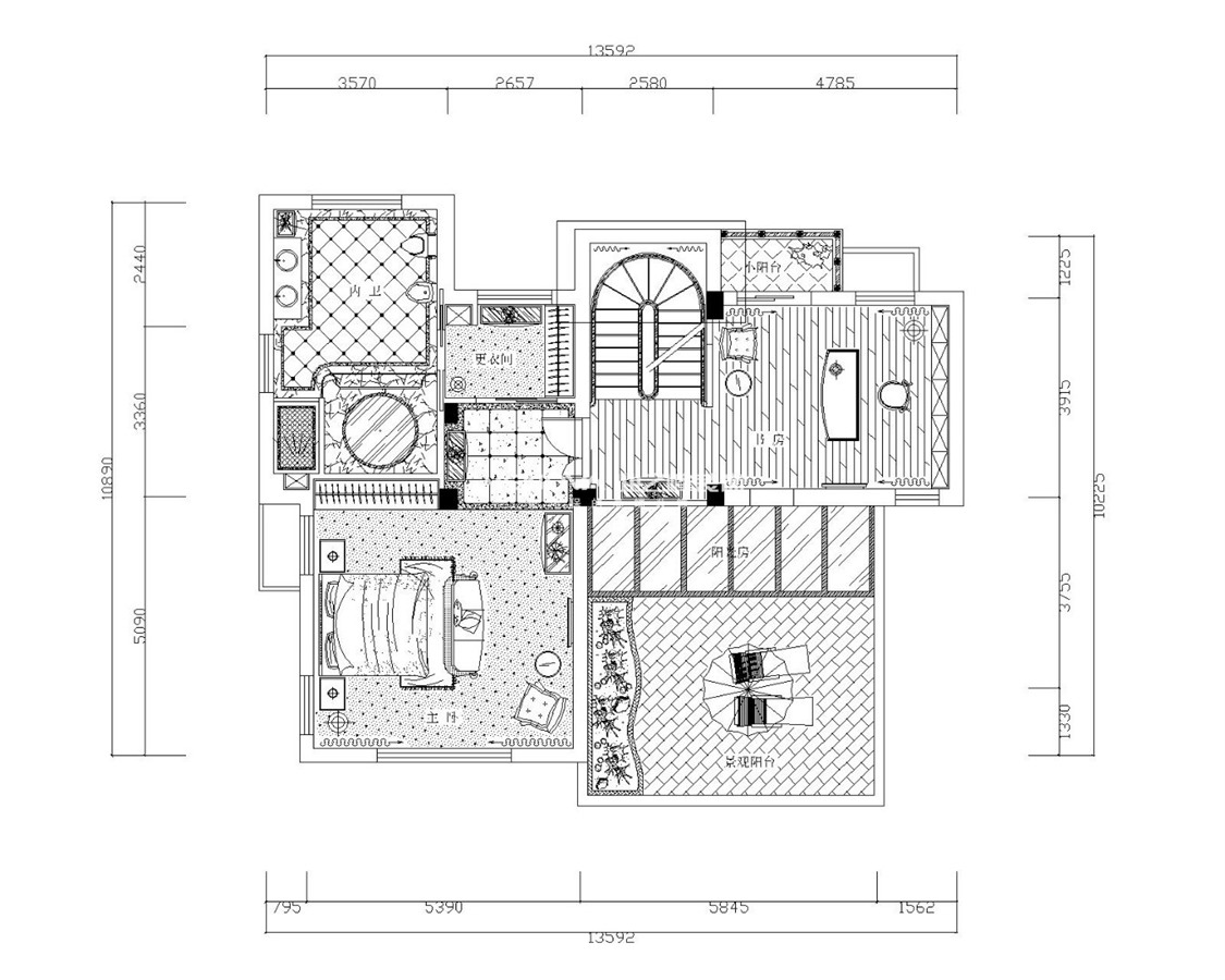
户型图

客厅








餐厅

休闲区



卧室







京公安网备11010502040911