130㎡三居新中式风格融创中心
发布时间:
2019年04月19日
小区:融创中心 面积:130㎡ 户型:三居 风格:新中式风格
设计说明
本案业主是一位民族企业家,他对清雅闲适的生活有着深深的渴望。在设计将中式情韵以简雅静宁的格调呈现出来,让居者在木作的纹理、阳光的渗透、清茶的幽香中,品味生活的烟火气与安适感。
本案坐落于天津市南开区融创天拖,户型方正,南北通透,属于平层中面积适中的户型。这样开放与独立兼顾的空间,给了设计与生活多种互动的可能性。8年的私人住宅设计研究与实践,让我在思考“什么才是家的本真”中有了这样的理解—不追求刻意,不强化风格,不着墨矫饰,家与业主的居住日常相融一体,像云朵归融自然一样让家回归本真。故本案亦取名为云归。
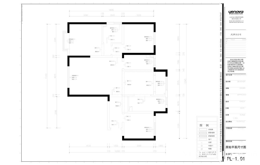
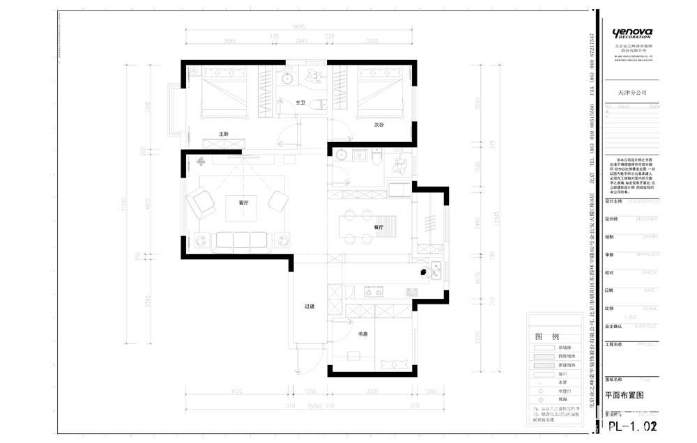
户型图

客厅





餐厅

卧室






京公安网备11010502040911