北京
【切换】
整屋案例
家居美图
实景案例
装修现场
装修攻略
无数据
搜索
010-84934479
扫码快速拨号 >
扫码快速拨号
首页
效果图
设计师
装修现场
装修攻略
品质保障
了解业之峰
当前位置:
首页
装修图库
案例相册
190㎡三居混搭风格恒大华府
发布时间: 2019年04月19日
小区:恒大华府
面积:190㎡
户型:三居
风格:混搭风格
设计说明
本案采取混搭风格 业主比较年轻 思维比较宽广希望色彩上 和风格上比较突出。
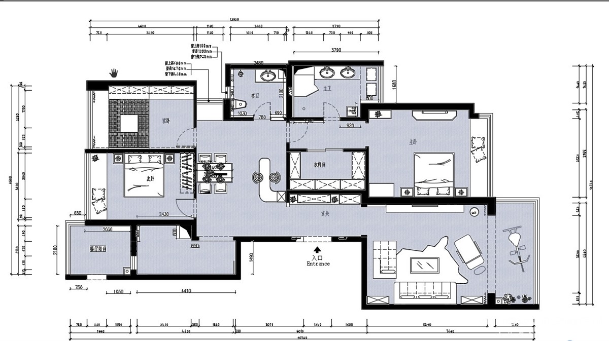
户型图
客厅
餐厅
玄关
卧室
设计说明
户型图
客厅
餐厅
玄关
卧室
本案设计师
业之峰专业设计师
免费咨询
我家装成这样多少钱?
㎡
获取报价
相关案例推荐
140㎡三居混搭风格保利天汇
查看详情
145㎡三居混搭风格兰石 豪布斯卡
查看详情
125㎡三居混搭风格中海寰宇天下
查看详情
140㎡三居混搭风格润兰之城
查看详情
135㎡三居混搭风格天庆国际新城
查看详情
360㎡三居混搭风格碧水三重苑
查看详情
110㎡三居混搭风格观江海
查看详情
190㎡三居混搭风格唐延九郡
查看详情
113㎡三居混搭风格元熙樾府
查看详情
92.7㎡三居混搭风格格调步庭
查看详情
129㎡三居混搭风格世通格林兰郡
查看详情
141㎡三居混搭风格飞龙上观城
查看详情
103㎡三居混搭风格蓝谷地
查看详情
230㎡三居混搭风格海门沁园
查看详情
115㎡三居混搭风格湖岸缇香
查看详情
134㎡三居混搭风格橡树湾
查看详情
125㎡三居混搭风格金都九珑宸
查看详情
100㎡三居混搭风格凤凰国际
查看详情
125㎡三居混搭风格绿地IFC中央公馆
查看详情
127㎡三居混搭风格华润昆仑御
查看详情
展开
报价计算器
免费量房
免费设计
回到顶部