220㎡三居新中式风格御花园
发布时间:
2019年04月11日
小区:御花园 面积:220㎡ 户型:三居 风格:新中式风格
设计说明
感到宁静和安逸;籍着室内空间的解构和重组,便可以满足我们对悠然自得的生活的向往和追求,让我们在纷扰的现实生活中找到平衡,缔造出一个令人心驰神往的写意空间。
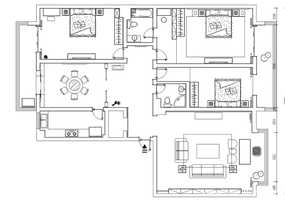
户型图

客厅




餐厅


玄关

感到宁静和安逸;籍着室内空间的解构和重组,便可以满足我们对悠然自得的生活的向往和追求,让我们在纷扰的现实生活中找到平衡,缔造出一个令人心驰神往的写意空间。







