136㎡三居现代简约风格自然界·云栖
发布时间:
2019年04月10日
小区:自然界·云栖 面积:136㎡ 户型:三居 风格:现代简约风格
设计说明
①入户玄关定制玄关柜,美观的同时、又实用好打理,踢脚线上方增设暗藏式感应灯,方便夜间通过。
②客厅入户首先映入眼帘的是沙发背景墙,沙发背景墙选用拉槽木饰面,局部内嵌不锈钢饰面,增强空间的通透感。
③主卧床头背景墙选用客厅同色系木饰面,统一了空间的整体性,木饰面下方悬空增设内置灯带,不会让空间因为木饰面显得过于厚重、沉闷。
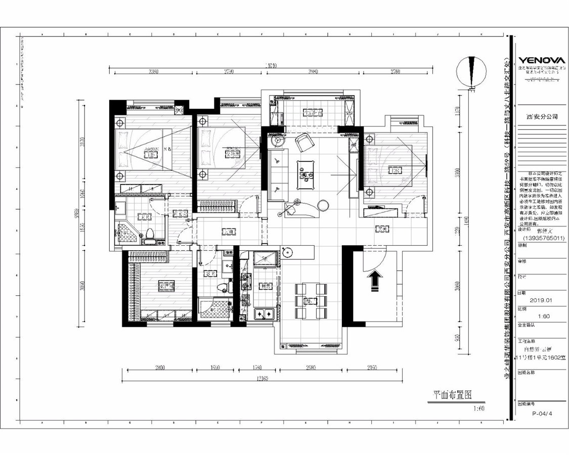
户型图

客厅



餐厅

玄关

卧室





京公安网备11010502040911