200㎡别墅新中式风格远洋万和城
发布时间:
2019年04月07日
小区:远洋万和城 面积:200㎡ 户型:别墅 风格:新中式风格
设计说明
中国传统室内装饰艺术的特点是总体布局对称均衡,端正稳健,格调高雅,造型简朴优美,而在装饰细节上崇尚自然情趣,花鸟、鱼虫等精雕细琢,富于变化,充分的体现出中国传统的美学精神;黑、红、黄等为主,色彩浓重而成熟;中国传统室内陈设包括字画、匾幅、挂屏、盆景、瓷器、古玩、屏风、博古架等,追求一种修身养性的生活境界。任何一种风格的演绎都有着其特的文化背景作为支撑,而新中式风格则是以中国传统古典文化作为背景的,营造极富中国浪漫情调的生活空间。中式元素与现代元素的巧妙柔和,简单的家具、窗帘、实木门、床艺品的相互辉映,在现了移步变景的精妙小品。原木质感的实木门搭配上中式风格的家具,让整个卧室的风格没有夸张,不显浮华,可以让我们暂时忘记生活中的喧嚣,给生命一个梦想,给心灵一个栖息之地,也表达了我们对清雅含蓄、庄重风华的东方式精神境界的追求。清新的色调让整个空间多了一份灵动,中式元素结合现代背景,整体空间简洁利落,让时光可以在此刻慢一点再慢一点。
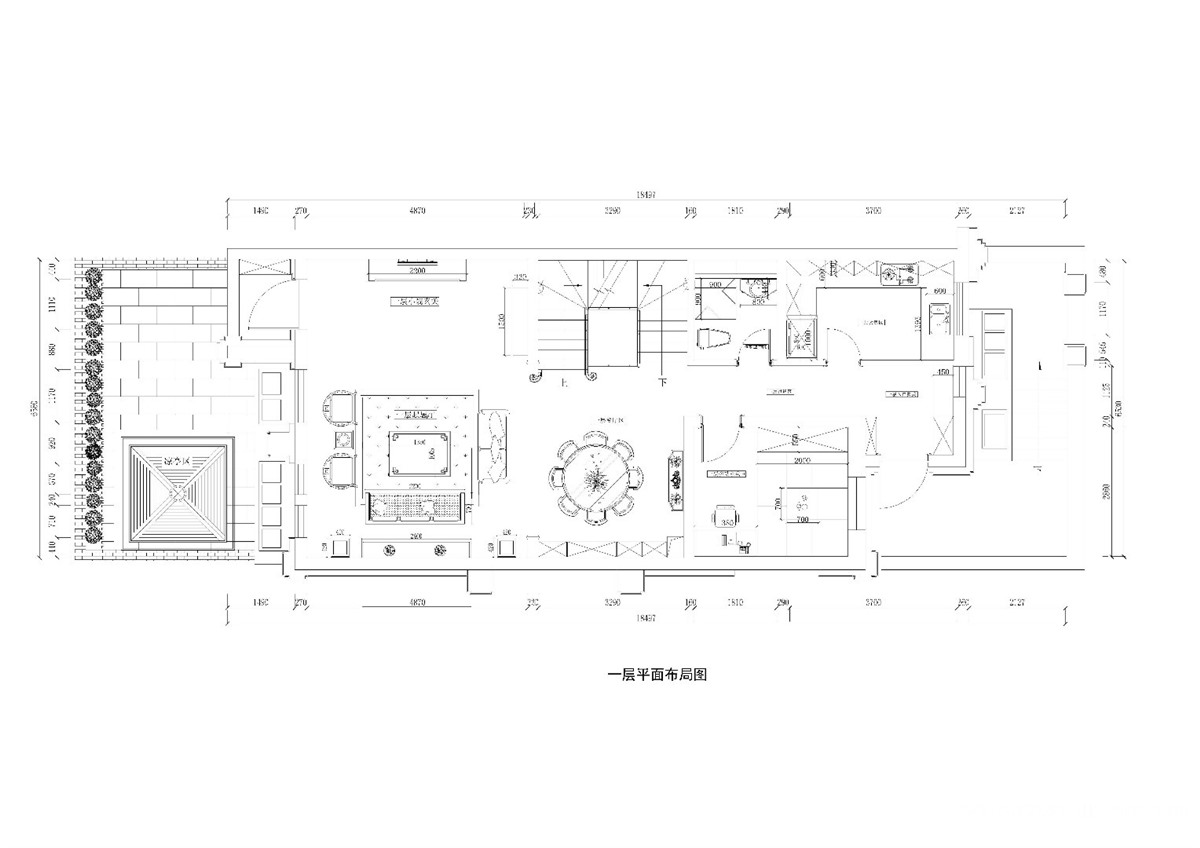
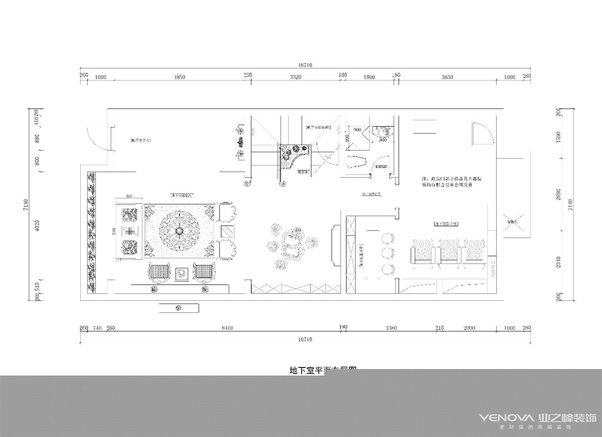
户型图

客厅






卧室







京公安网备11010502040911