200㎡别墅美式风格万豪水岸枫林
发布时间:
2019年04月06日
小区:万豪水岸枫林 面积:200㎡ 户型:别墅 风格:美式风格
设计说明
本案特别选用了美式的设计主题。在有限的空间极大地利用了每个区域。客厅采用石膏吊顶,搭配精致的水晶吊灯,营造出一种怀旧、浪漫的感觉。以仿古地砖作为地面装饰材料,质感极佳,在沙发区域铺上大幅花纹地毯,使空间划分更加清晰。复古造型的组合沙发,以及茶几都具有上乘的质感,让美式风格得到进一步的彰显。电视背景墙采用墙板,让整面背景墙更加立体,更加美观。客厅窗帘选用双层设计,一层为奢华提花布,另一层则为轻薄的纱帘,兼顾了保护隐私与透光性。餐厅还是采用与客厅一致的仿古地砖,客餐厅连成整体,空间更显宽敞。在餐桌旁边设有一个餐边柜,上面一部分选用带玻璃的平开门,可以放工艺品和酒,能起到一个装饰性的作用,下面一部分采用带装饰线条的门板,可以搁置生活中的杂物,既达到了功能性,也达到了美观性。厨房是采取开放式,与餐厅成为一个空间,让厨房操作空间更加充裕。
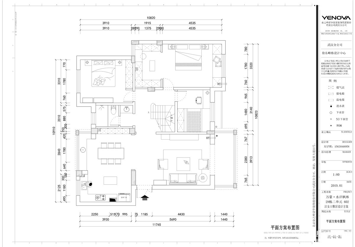
户型图

客厅











京公安网备11010502040911