133㎡三居北欧风格珞珈雅苑
发布时间:
2019年04月06日
小区:珞珈雅苑 面积:133㎡ 户型:三居 风格:北欧风格
设计说明
本案特别选用了北欧的设计主题。在有限的空间极大地利用了每个区域。入户门厅地面选用地砖铺设,考虑门厅作为一个入门空间和换鞋区域,后期活动比较频繁,选用地砖更加好打理。鞋柜选用定制高柜,不仅仅有收纳鞋子的功能,还可以储存生活的杂物,为空间增加了储存空间。入户门厅为了考虑到客户后期换鞋的舒适性,为其设计了一个换鞋凳,以备客户的日后之需,也不失美观性。客餐厅和卧室皆选用地板铺设,整个空间地面铺设形成了统一。客厅的沙发背景墙选用了挂画和挂饰作为点缀,营造出北欧风格的简约感。墙面都是选择艺术涂料,环保性能更高,颜色也比较纯正。餐厅背景墙选用了一个蓝灰色,选的颜色不张扬也不跳跃,蓝灰色与白墙形成一个撞色效果,让空间更加灵动活泼。家具的选择也都是造型感很强的,凸显出了干净洗练的空间氛围。尺寸上选用了小巧型,长沙发加上两个座椅,让空间更加灵动,既能满足日常的家居使用,也能达到整体搭配的美观性。餐厅布局上选择餐桌靠墙,能更好的留足过道空间,使空间更加宽敞,不拥堵。在细节上也着重考虑迎合整个空间气氛,吊灯和地灯同样是选用造型感十足的简单线条型。整个空间塑造体现出了客户对生活品味的追求。
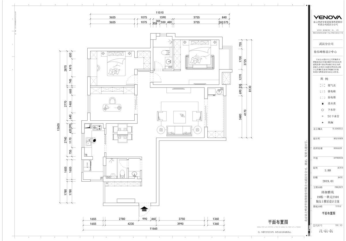
户型图

客厅





餐厅






京公安网备11010502040911