124㎡三居欧式风格融侨城
发布时间:
2019年04月06日
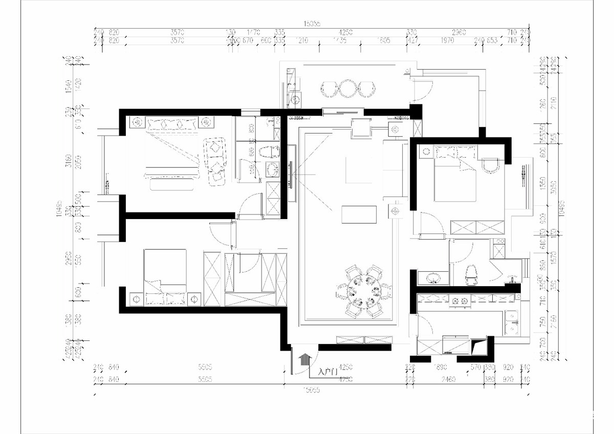
小区:融侨城 面积:124㎡ 户型:三居 风格:欧式风格
设计说明
小区:融侨城
户型:三居室
面积:124㎡
设计风格:欧式风格
设计师:雷伟
设计理念:设计来源与生活,并高于生活。
设计说明:
本案例顾客是看同小区同户型对公司、工艺、设计都非常认可,慕名而来。这套房子是改善型住房。第一次碰方案是在华天大酒店做会展活动谈的,我们能良好沟通,专业知识够扎实,彼此建立了不错的信任,业主也非常果断、信任,回去带老婆过来聊了一下整体感觉和需求就直接定了。整个团队沟通推倒重建,最后确定了这一稿。罗先生很认真也很坦诚把他和家人喜欢的家具、风格、软装都发给我们。整个作品是设计团队和罗先生共同完成。后面我们会严格根据实际情况完善落实设计,整体把控工地质量,让顾客体验一站式服务,真正做到省时省力省心。该户型的痛点在1户型图 
卧室

客厅









餐厅





京公安网备11010502040911