165㎡四居港式风格常青花园逸峰
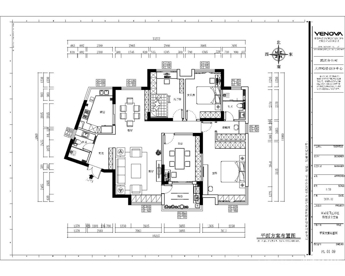
家是人们生活的港湾,它承载着我们太多的欢笑与快乐,是人们对生活的一种情感态度,是一种生活态度的追求,是人们对于高品质生活的精神追求,这套164㎡以现代风格装饰的房子住着业主家四口人,一对夫妻和一儿一女,正在读初中的女儿和出生不久的儿子,业主从事着教师职业,本案业主希望有一个简约,明亮的居住环境,有一个办公,阅读,待客谈话的空间,此套户型南北通透,采光通风效果好,视野开阔。我们运用米黄色为主调,以舒适为主,强调自然和谐的居住环境,在墙面刷上了米黄色的漆,让整个室内设计有一种非常柔和的感觉,温暖的空间能够和多种颜色进行搭配。平面布局利用空间原有的动线进行分割设计。厨房、餐厅、客厅、卫生间为生活区域,书房,卧室为生活区域,从而明确了动线。业主是典型的知识分子,有着许多的书籍,所以我们在书房打了一面墙的柜子,便于业主储藏书籍。在房间的规划上,我们设计了两间次卧,由于刚刚出生的儿子还小,在儿子房间里我们设计放置了高低床,充分的满足孩子们的天性需求,孩子还在成长中,好动热爱爬上爬下,即可锻炼孩子的身体,同时也可以给孩子们带来乐趣。高低床可以灵活变动不占什么位置,还让空间充分利用。另外一间作为女儿房,主卧室带有衣帽间,使用方便。因为有四口人,需要储藏的空间较大,我们在合理的规划上,增加了许多的储藏空间,使家里更为整洁舒适。在立面设计上,富有层次感的吊顶和灯光的设计,让空间更加精致,软装这一块的选择了较为低沉的颜色,和一些个性鲜明的金属家具,搭配黄铜饰品的金属感,点亮了整个空间也强调简单中也有奢华的温柔感觉,一个温馨,舒适,立即呈现出来。















京公安网备11010502040911