320㎡别墅现代简约风格金银湖别墅
发布时间:
2019年04月06日
小区:金银湖别墅 面积:320㎡ 户型:别墅 风格:现代简约风格
设计说明
项目名称:金银湖别墅
建筑面积:320㎡
装修风格:现代简约
工程造价:18万 主材造价:28万
代表作品:南沙茗荔雅居别墅、南沙保利西海岸别墅、从化夏湾拿别墅、金碧世纪花园雅居、现代广场雅居、金银湖别墅、香奈天鹅湖LOFT等
设计理念:设计来源于生活,服务于生活,且高于生活!
擅长风格:田园风格、后现代风格、新中式、欧式
主要材料:大理石砖、木饰面护墙板、墙布、木质线、调色乳胶漆等
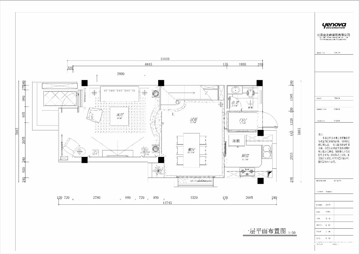
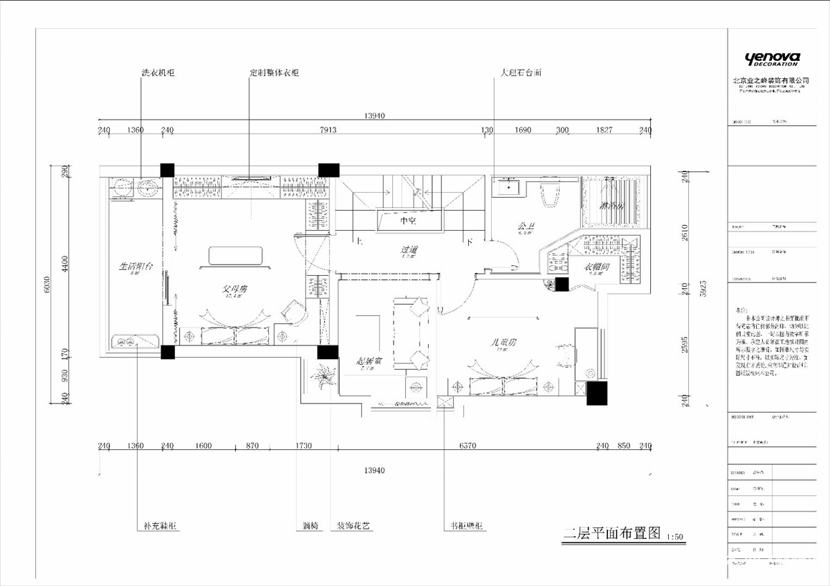
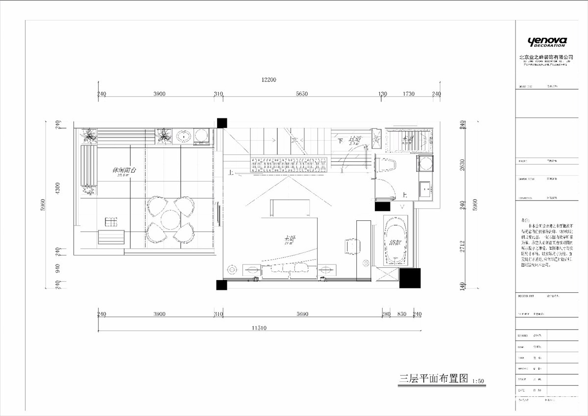
户型分析:优点:独栋别墅,南北通透,各区域采光通风良好。客厅与餐厅是开敞的的长方形空间,通透性好,视觉延伸性强。
缺点入口鞋柜面积小,使用率低;南朝向阳台有两个排水管,不美观。
如何改正: 利用建筑本身的层高差,优化空间感,使得室内空间移步异景,更具有层次感。
主卧
简洁时尚是我们追求的主题,所以大量采用调色乳胶漆和简洁的样条线统一空间,舒适自然。本设计特别注重简洁的软装饰品,尤其是各个空间互相统一呼应的现代几何装饰挂画
,紧扣主题。
客厅
为了保证整个空间的干净整洁,背景墙采用对称木线条护墙板的设计,大部分留白。装饰画、地毯以及楼梯扶手更是在造型结构上很好的统一。
本套设计是为成功人士的三代人打造设计的,只为营造一个温暖舒适、简洁时尚的空间。硬装部分基本没做什么造型,重点在木质线条的色彩造型选择
和家具软装搭配上,轻软装重装饰,让软饰给人以温暖舒适。
户型图

卧室



客厅








卫生间





京公安网备11010502040911