200㎡别墅现代简约风格翡翠公元
发布时间:
2019年03月06日
小区:翡翠公元 面积:200㎡ 户型:别墅 风格:现代简约风格
设计说明
本方案整体风格以简约为主。简约不等于简单,它是经过深思熟虑后经过创新得出的设计和思路的延展,不是简单的“堆砌”和平淡的“摆放”。空间的划分也不再局限于硬质墙体,而是更注重会客、餐饮、学习等功能空间的逻辑关系。
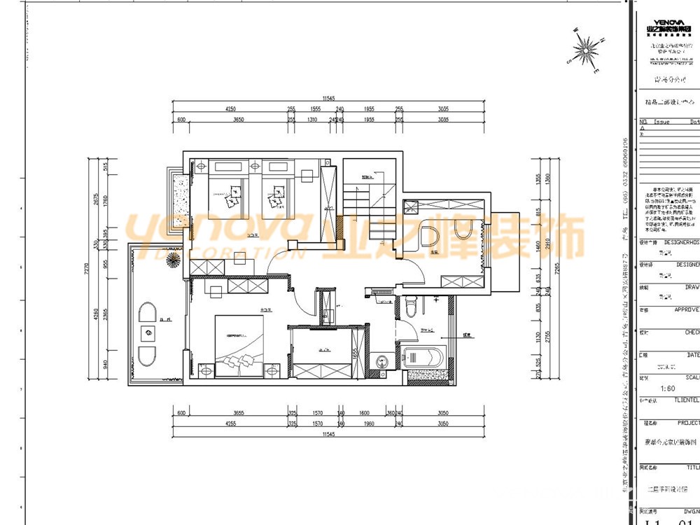
户型图

卧室


楼梯

玄关

客厅






京公安网备11010502040911