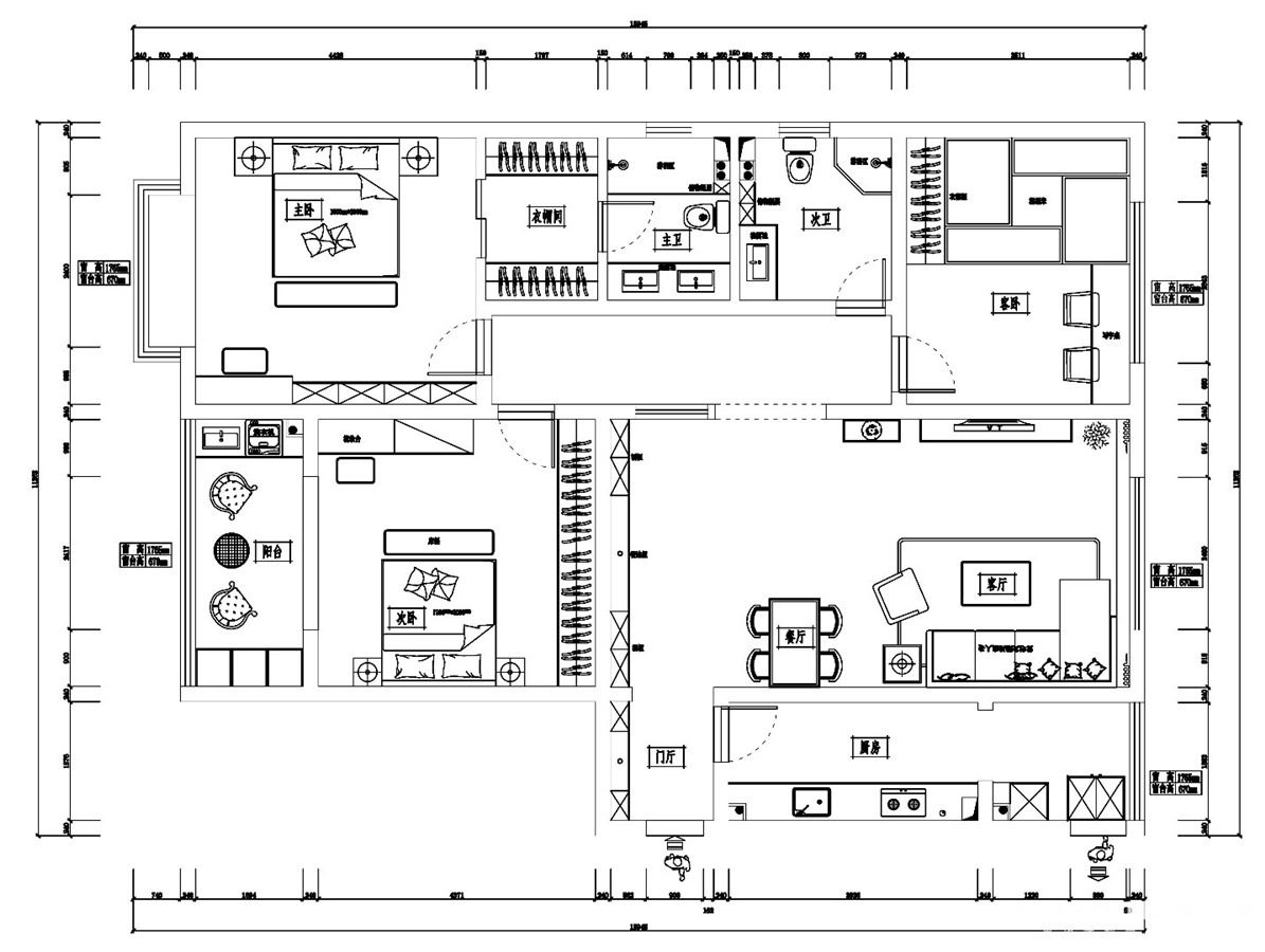
160㎡三居范家堡
发布时间:
2019年03月04日
小区:范家堡 面积:160㎡ 户型:三居 风格:
设计说明
方案为整个设计风格为古典美式,随着社会的变化,住宅不仅仅是居住场所,我们不能狭隘地理解她。灵活的思考家的存在,她和环境相接连,让家庭成员关系更加亲密。家只是在一块土地建起来的舞台,而实际生活却远远溢出“家”的范围,在仅有的面积内塑造有趣的家的灵魂,由内而外让家真正成为居住者内心的避风港。
户型图

卧室


客厅



餐厅





京公安网备11010502040911