180㎡四居港式风格鲁能泰山7号院
发布时间:
2019年03月02日
小区:鲁能泰山7号院 面积:180㎡ 户型:四居 风格:港式风格
设计说明
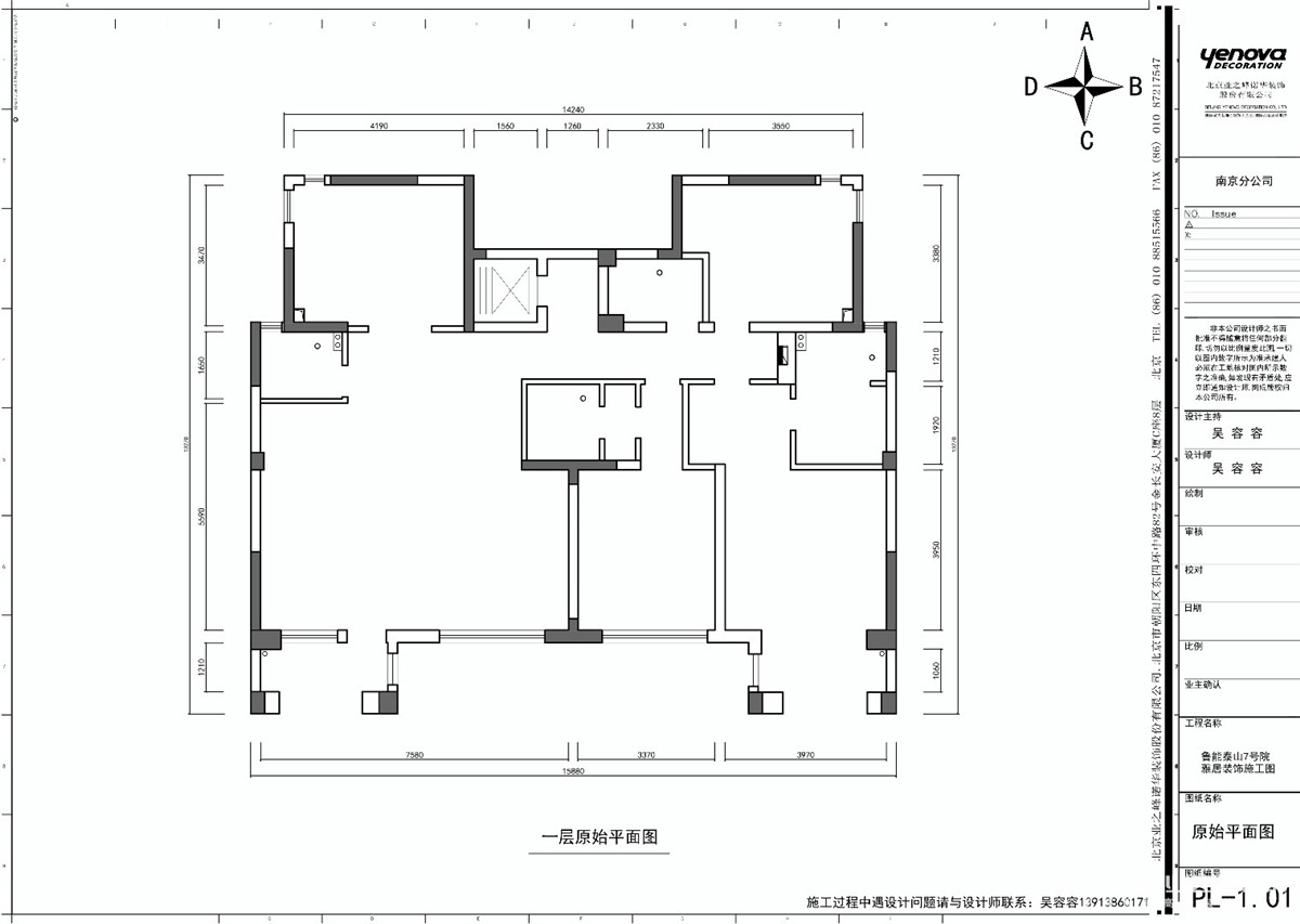
客户对象为一对年轻的夫妇,该户型为一个下叠三层的一层。客户男主人是一个喜欢轻奢并且喜欢简单的造型。经过沟通,该风格设置为现代港式风格。该房屋结构较为规整,设计师在房屋入户门处增添一个房间,增大了房屋使用率,并且改变了入户门厅的位置,增大了客厅的采光面积。增添老人房在一层,增加了卫生间的面积并且紧靠卫生间,为老人的起夜提供最大的便利。原先的卫生间改为储藏间增加收纳面积。现代港式运用大量的金属线条,增加了其奢华感与简洁感,墙体使用大面积的乳胶漆,与简洁明亮的地面相互呼应,是整体通透明亮,设计师陪同客户选择的挂画,简洁明朗,更是给该房屋增添了一份艺术气息。
户型图

客厅






餐厅

玄关





京公安网备11010502040911