130㎡三居美式风格碧华邻
发布时间:
2019年01月19日
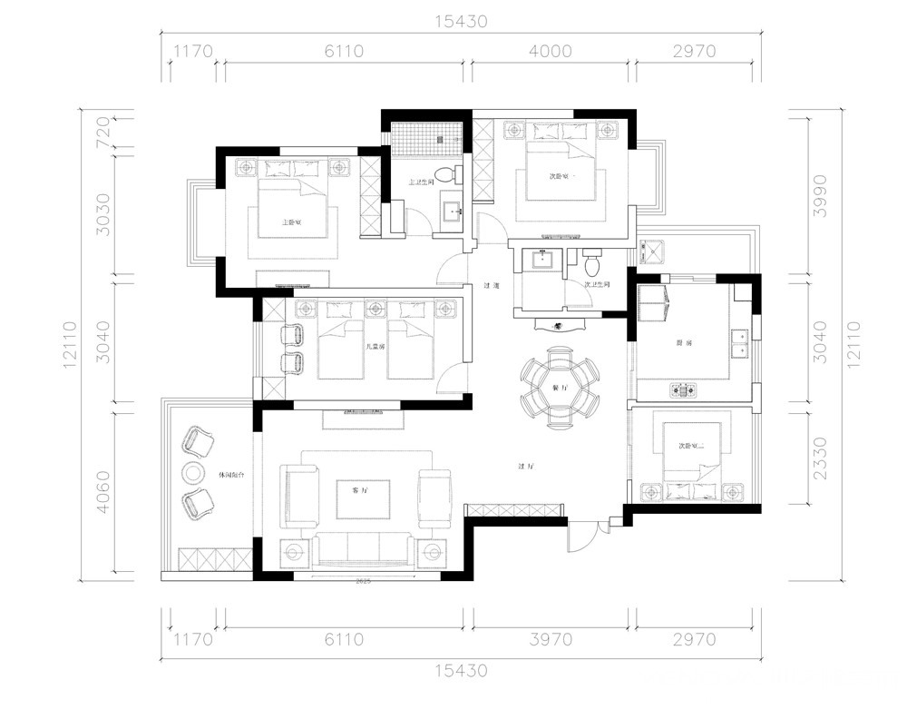
小区:碧华邻 面积:130㎡ 户型:三居 风格:美式风格
设计说明
本套设计方案为美式风格,以米色调为基调,米黄色地砖,简介大气的空间设计、别致电视墙为中 心,精美的背景墙为衬托,使得以客厅、餐厅为中心的整个居家空间显得高贵而典雅、温馨而时尚 ,从而使得温馨、舒适、浪漫、奢华、时尚、高品位空间设计效果得以表现出来。
户型图

客厅


卧室






京公安网备11010502040911