500㎡别墅美式风格蔚蓝卡地亚
发布时间:
2019年01月19日
小区:蔚蓝卡地亚 面积:500㎡ 户型:别墅 风格:美式风格
设计说明
每个左右时代的塔尖人物,总是对高雅品位有着自身的理解与追求。
牧马山蔚蓝卡地亚位于成都牧马山中央纯高端低密区,拥有广袤浅丘山脉、白河、森林覆盖,自然环境优美。以经典传世建筑、欧式四季美景、俱乐部配套与定制服务,成就格调蔚蓝生活。
法式风格与现代风格混搭,营造浪漫温润的空间氛围。空间主题色调为暖白与高级灰结合湖水墨蓝与金色线条的勾勒,赋予空间不同的情感……
当深处客厅区域时,层高为7米的挑高空间顿时带给体验者的是空间的开阔与震撼,背景墙采用天然大理石,通过精湛的工艺手法,打造宛如江南烟雨飘渺的画卷,而与壁炉的完美结合,更是增加了温暖与柔和。
舞动的火苗温暖了整个空间,紧邻餐厅区域转身便是门厅区域,开阔的空间配以漂亮的花台,将客厅,餐厅与玄关连接起来,使居家空间更加通透宽敞,增加互动性。
负一层作为主要接待空间延续整个空间白色与灰色的主色调,开放的会客厅,书房与户外花园完美结合,纵向面延展,线性收边的空间设计手法,将线与面完美结合,丰富了艺术形态在简单空间里的多层次变化。
二楼与三楼男女主人房运用了女主人喜爱的现代法式风格,干净的线条与繁复的雕花完美展现女主人内心的浪漫与温柔,每一件饰品,每一个角落都体现女主人对家对生活美好的愿景和展望。
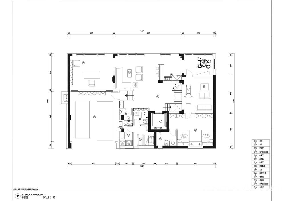
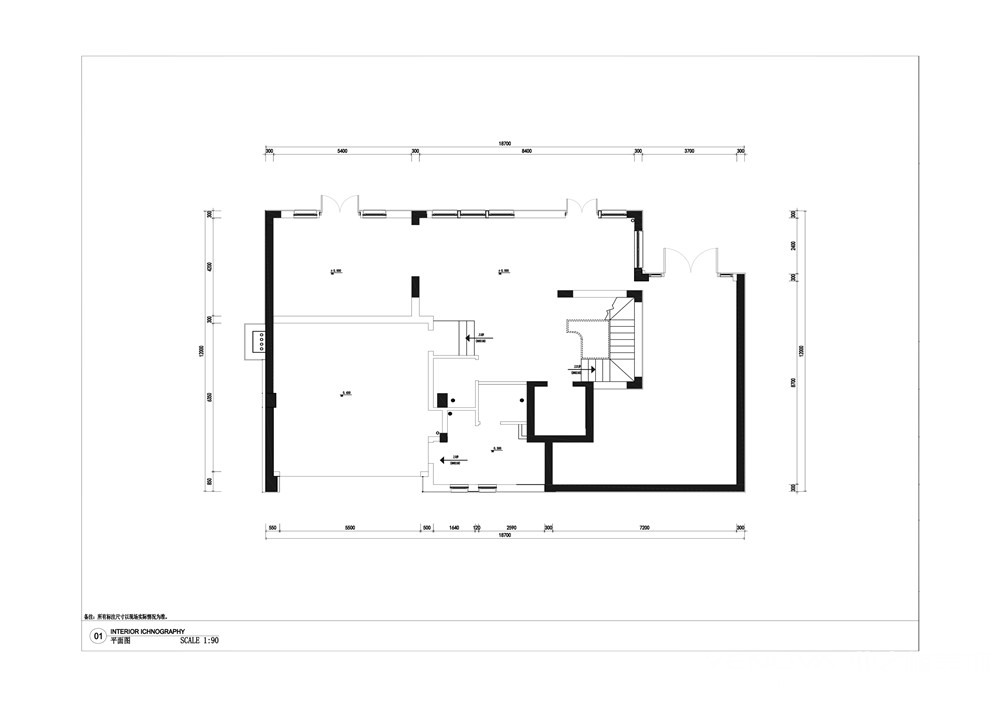
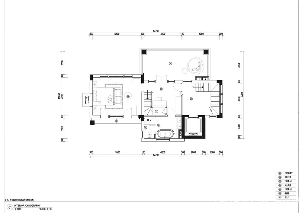
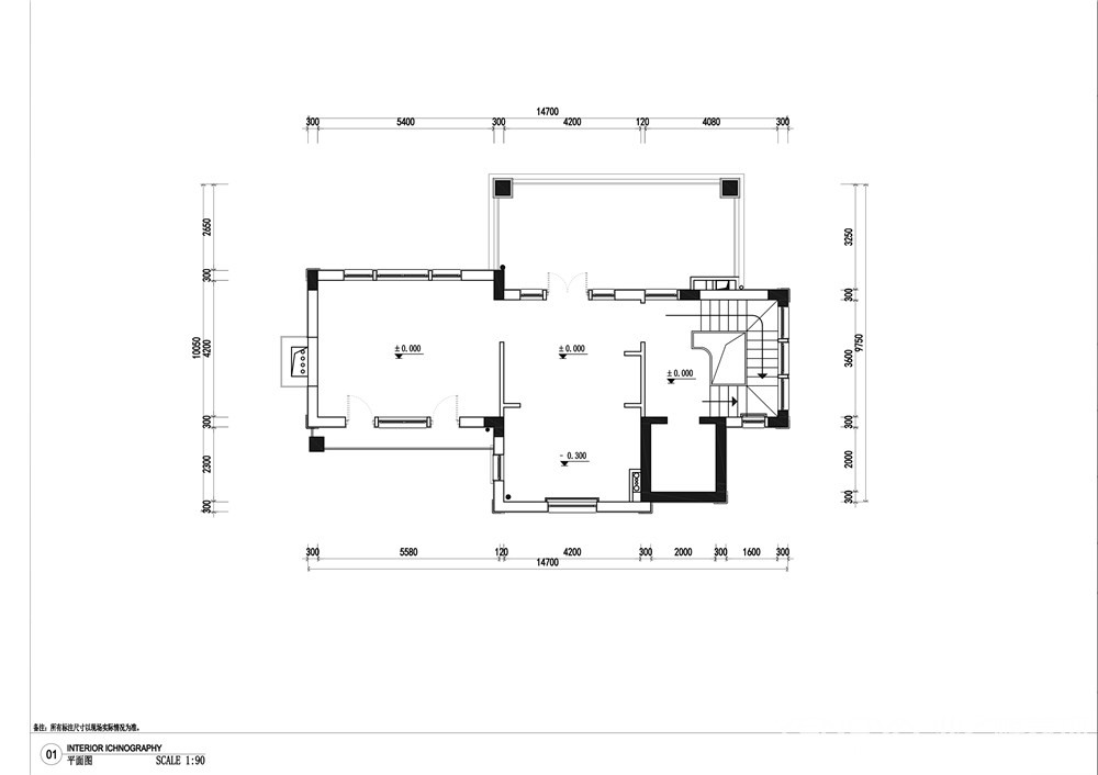
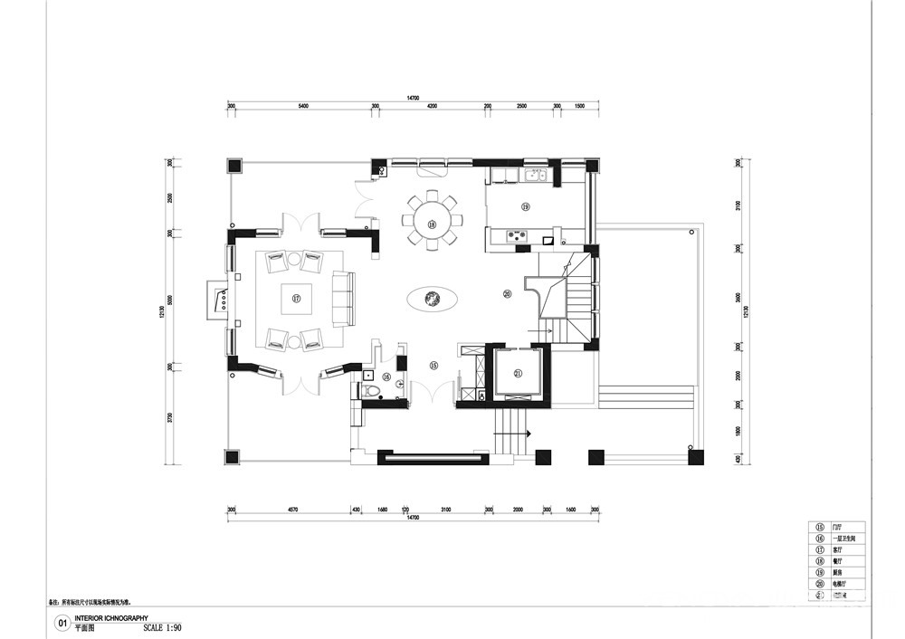
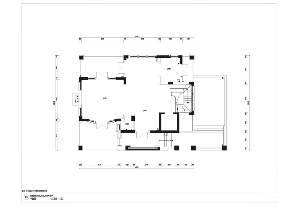
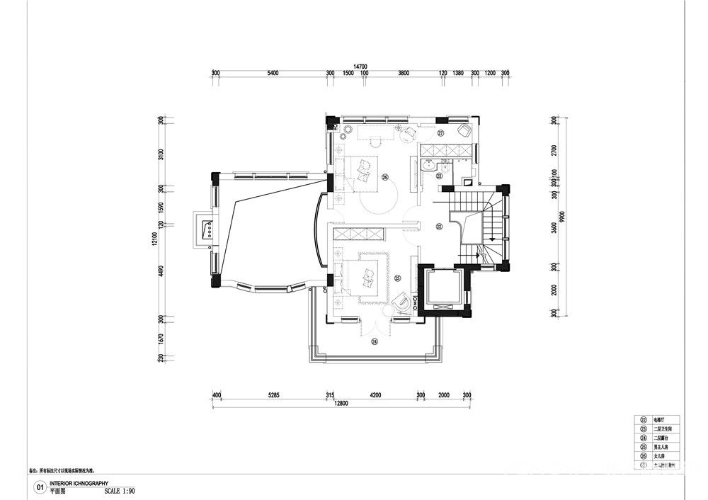
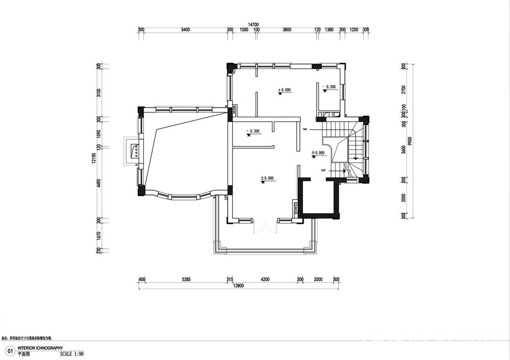
户型图

客厅









休闲区

卧室


卫生间





京公安网备11010502040911