221㎡三居简欧风格中海九号公馆
发布时间:
2019年01月19日
小区:中海九号公馆 面积:221㎡ 户型:三居 风格:简欧风格
设计说明
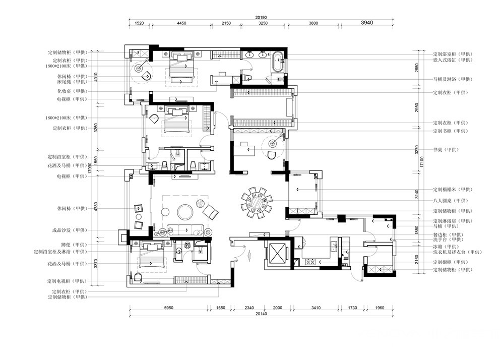
陈先生对生活的要求属于精神层面,对设计,和生活质量的要求和品质要求都偏高。以简洁明亮为主,以简约、自然的气质为主题,高雅又内涵,体户型图 
客厅


卧室

餐厅

陈先生对生活的要求属于精神层面,对设计,和生活质量的要求和品质要求都偏高。以简洁明亮为主,以简约、自然的气质为主题,高雅又内涵,体户型图 



