430㎡别墅新中式风格龙湖长桥郡
发布时间:
2019年01月19日
小区:龙湖长桥郡 面积:430㎡ 户型:别墅 风格:新中式风格
设计说明
自然的木纹,写意的水墨,干炼的线条,并运用现代块面状的设计手法,极力营造一种中国式的安静、优雅之美。空间的整体视觉以白色、木色、暖灰色为主调,辅以一些清透,灵动的山水画点缀其中,体现现代中式的含蓄之美。化繁为简,注重细节及比例美感,强调合理空间布局与使功能完美结合。
会客厅和接待茶室散发着淡淡的木香,只需心境空灵,少几分浓墨重彩,多几分雅致清宁,并在此感悟生命的智慧。采光井中的阳光暖暖的投射进来,小景营造其中,少一些繁杂,多一些趣味。一呼一吸,一吐一纳之间感受自然的韵律。有时候我们并不需要太多的物质和外在的东西来包装,其实我们真正需要一个自然的并让自己感到幸福空间。
室外自然景观与室内有机结合,天人合一,东方意境油然而生。
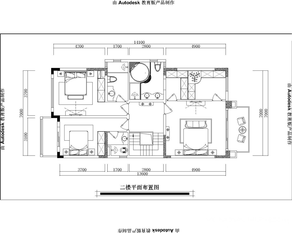
户型图

客厅








餐厅

休闲区

卧室





京公安网备11010502040911