150㎡三居简欧风格雅荷紫金阳光
发布时间:
2018年12月12日
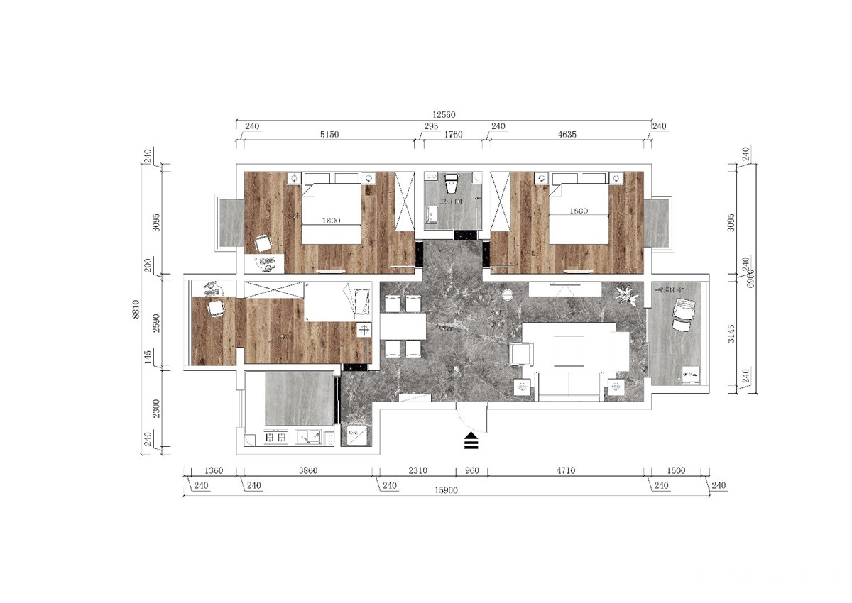
小区:雅荷紫金阳光 面积:150㎡ 户型:三居 风格:简欧风格
设计说明
本案设计糅合了传统欧式装修风格的特点简欧,在设计上追求空间变化的连续性和体型变化的层次感,由曲线和非对称线条,线条有的柔美雅致,有的遒劲而富于节奏感。整个立体形式都与有条不紊的、有节奏的曲线和谐地融为一体,以明快清新的颜色保留古典的奢华与美,又体现出了现代生活的舒适。竭力给室内装饰艺术引入新意。用几何线条修饰,色彩明快跳跃,外立面简洁流畅。立面立体层次感较强。
户型图

卫生间

客厅




书房

卧室

餐厅

儿童房





京公安网备11010502040911