128㎡三居美式风格桐梓林壹号
发布时间:
2018年11月29日
小区:桐梓林壹号 面积:128㎡ 户型:三居 风格:美式风格
设计说明
此设计方案的业主是一对年轻夫妇;风格倾向定位为简美风格,本案的业主给我们的感觉正如这间屋子一般,简单从容、气质淡雅,这样的优雅是由内而外散发出来的。
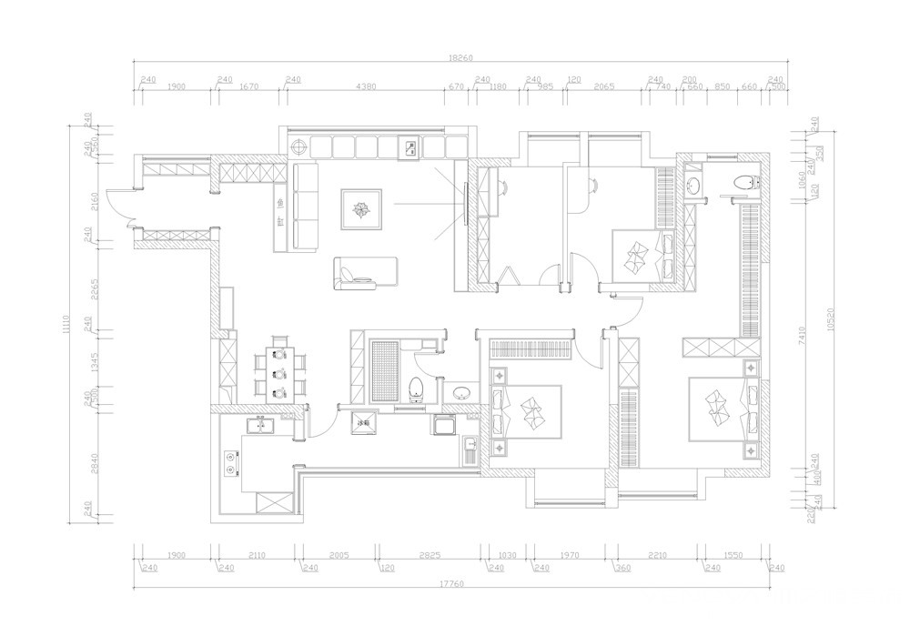
户型图

卧室


客厅


此设计方案的业主是一对年轻夫妇;风格倾向定位为简美风格,本案的业主给我们的感觉正如这间屋子一般,简单从容、气质淡雅,这样的优雅是由内而外散发出来的。




