140㎡三居北欧风格伟业公馆
发布时间:
2018年11月29日
小区:伟业公馆 面积:140㎡ 户型:三居 风格:北欧风格
设计说明
本案例为客户婚房,业主希望整体的功能布局合理,储物量充足,整体装饰不希望太繁琐,但要以简洁,时尚为主体设计。在设备上考虑中央空调。空间的整体色调以暖色为主。客厅属于动态区域,在整体的功能布局利用最大化。客厅的地面未做任何造型,以简单为主,在墙面和顶面的造型上也没有使用过多的装饰手法,电视墙使用了原木色护墙板与沙发背景墙的蓝色壁纸形成鲜明对比。在色彩的搭配上以暖色调为主,冷色调为辅,达到整体色调上的协调。
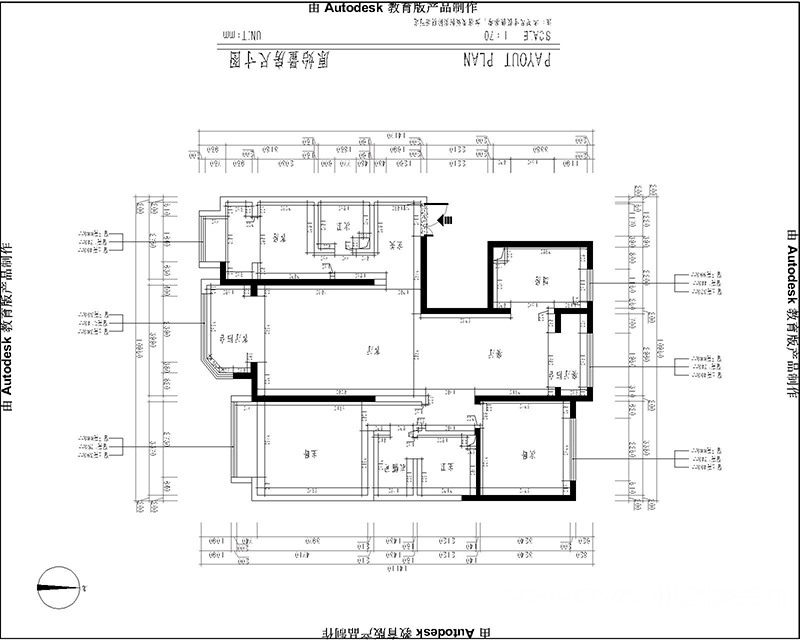
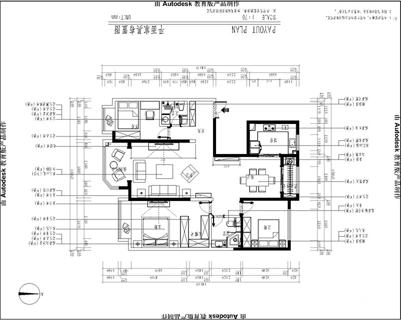
户型图

客厅




餐厅





京公安网备11010502040911