200㎡一居首创漫香郡
发布时间:
2018年11月28日
小区:首创漫香郡 面积:200㎡ 户型:一居 风格:
设计说明
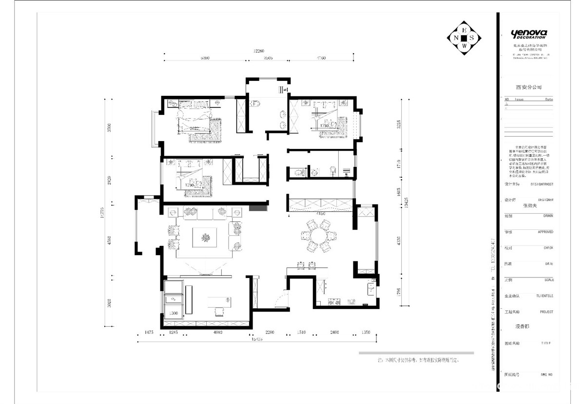
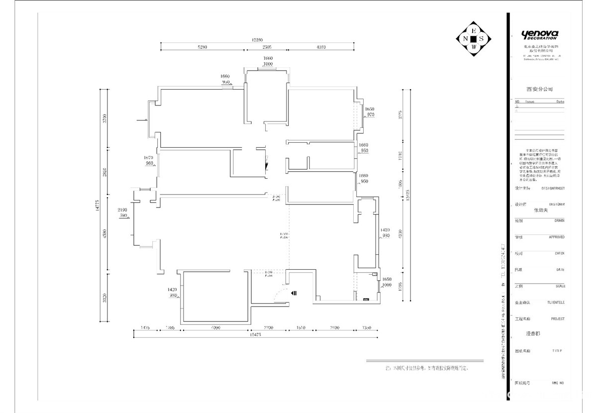
设计风格是当代中式设计,不是纯粹的元素堆砌,而是通过对传统文化的认识,将现代元素与传统元素结合在一起。空间装饰采用了简洁硬朗的直线条,迎合了家具追求内敛、质朴的设计风格,使其更加实用、更富现代感,营造户型图 
客厅





玄关

餐厅


书房

设计风格是当代中式设计,不是纯粹的元素堆砌,而是通过对传统文化的认识,将现代元素与传统元素结合在一起。空间装饰采用了简洁硬朗的直线条,迎合了家具追求内敛、质朴的设计风格,使其更加实用、更富现代感,营造户型图 








