180㎡平层简欧风格昆明花园
发布时间:
2018年11月28日
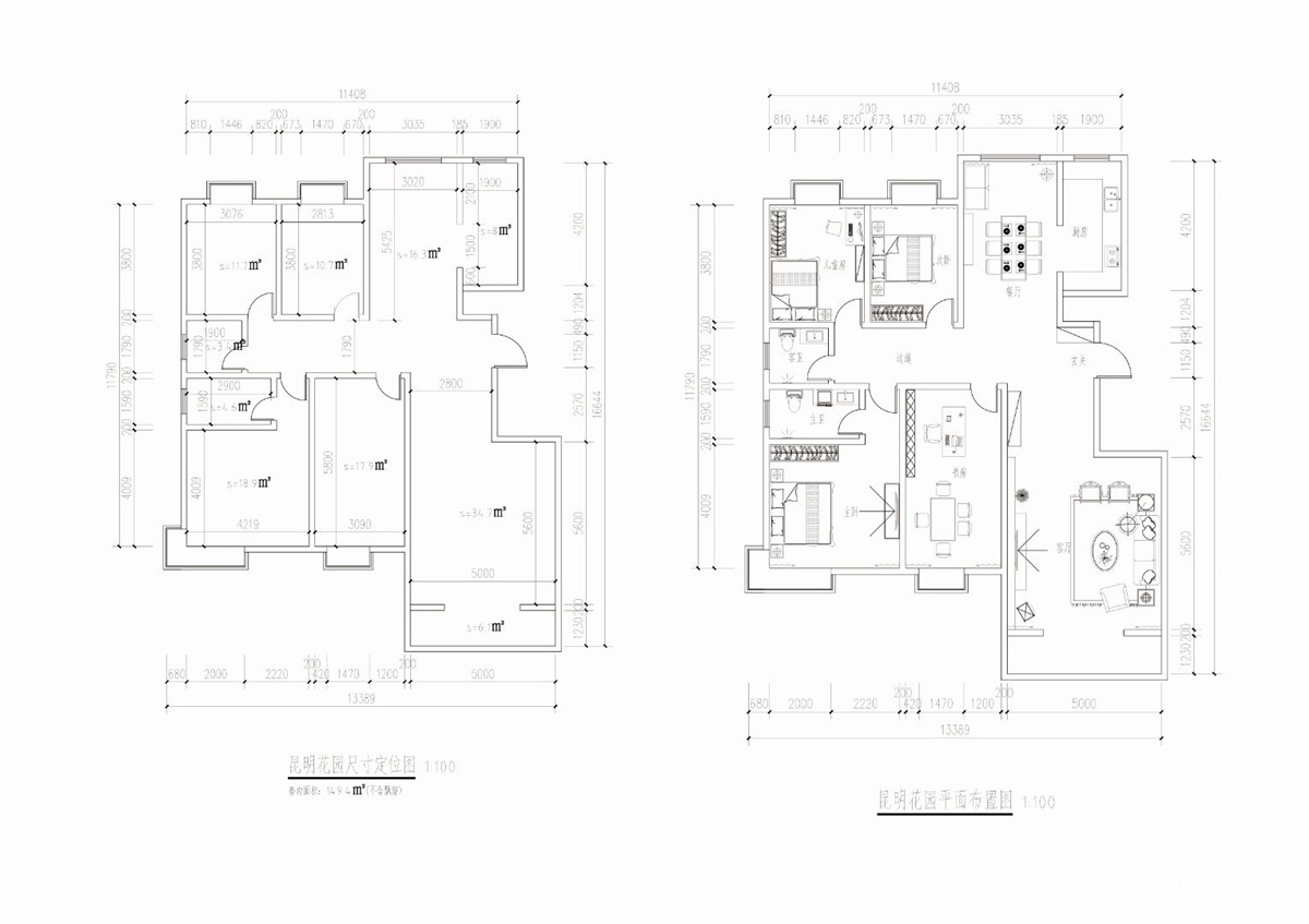
小区:昆明花园 面积:180㎡ 户型:平层 风格:简欧风格
设计说明
设计师的风格打破以往欧式深沉的色彩,大量使用的白色调,把欧式风格设计融入现代设计中浑然一体家居风格,白色调时尚温馨不突兀,客厅的白色墙面与白色地毯散发出的是淡雅清新的现代简欧味道,时尚的白色调沙发与装饰品的摆放,让整个客厅营造出时尚、高贵、轻松、愉悦的视觉感空间,没有任何的花哨装饰,地窗上有轻柔的纱幔,将那凡世的喧嚣抵挡在外,给人的感觉是那样的宁静动人,也让客厅增添了大气感,营造出一个朴实之中的时尚简欧家居设计。点燃了这几年室内设计界的异域设计思潮。
户型图

客厅




餐厅

卧室





京公安网备11010502040911