149㎡三居现代简约风格紫悦花园
发布时间:
2018年11月27日
小区:紫悦花园 面积:149㎡ 户型:三居 风格:现代简约风格
设计说明
根据同客户沟通的基本要求,满足一家4口居住要求,还有空间要宽敞,在后期卫生维护上要省时间,家居要温馨
它所要营造的空间精美程度达到了
一种极致,这必然使这种风格走向形式的不堪重负,所以简化了的欧式风格“简欧”风格受
到了人们的欢迎,简欧风格中又融入了时尚简约元素,使之更符合现代人的审美需求。
美式简约主义是美式古典风格的延续 , 从 1830年美国工业 时代的文明发展 , 使家具同期进入规模化生产。
工业化进程促使了美国人生活方式的变更 , 受到英国工艺 美术运动的影响 , 做为美国工艺美术运动的代表人物— GUSTAV STICKLEY(史蒂克利 ), 他所呈现的 MISSION FURNITURE(使命派 家具) , 强调采用有力的直线, 使用现代感的五金, 利用现代科 技材料,让家具简朴,实用,自然美观,工艺上乘。 从而形成 了风行美国的现代简约主义家具,其实际上是美国实用主义与 英国唯美设计的结合产物。
CITY NEST 传承美式简约风格的文化根源, 引领了简美主义 新风尚来源:美式家具 定制家具
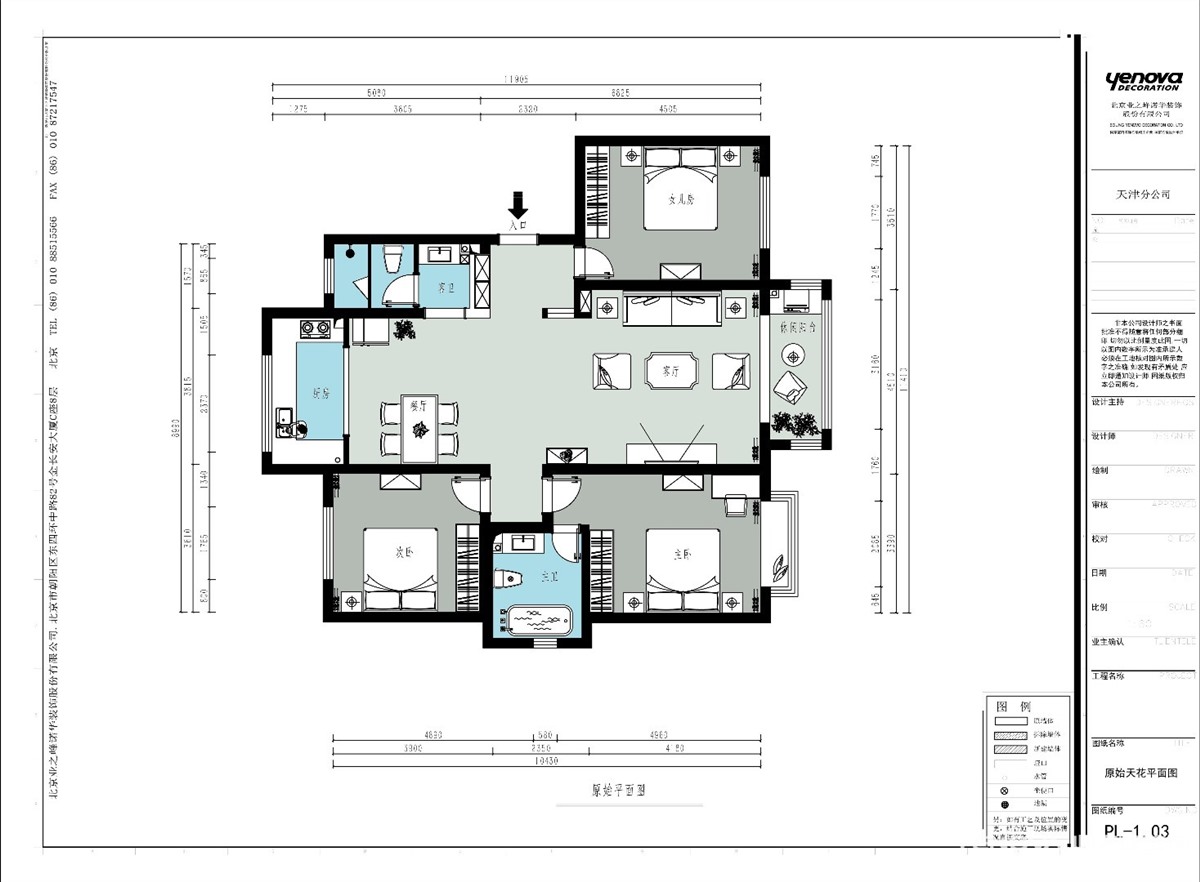
户型图 
客厅




卧室






京公安网备11010502040911