181㎡平层新中式风格雅居乐御宾府
发布时间:
2018年11月23日
小区:雅居乐御宾府 面积:181㎡ 户型:平层 风格:新中式风格
设计说明
本案风格定义为新中式.更符合现代人群的需求,它没有昂贵的造价也没有那么多复杂的装饰,既保留了中式风格的传统文化,又结合现代的手法展现出它的新中式感觉。让这个美丽的家变得沉稳又有韵味,在中式风格中我们更能展现出对历史的追溯,也能保留一些对中式风格执着的喜爱。中式元素与现代材质的巧妙结合,再现了精致小巧的中国式韵味,新中式性价比高,又不流失中华文化传统,简化了线条勾勒出一幅美丽的画景。同样它也讲究对称,让协调的感觉平衡,与传统风格一样追求内敛、朴素,装修手法的不同也让实用性增强,更富现代感。 新中式风格不是纯粹的元素堆砌,而是通过对传统文化的认识,将现代元素和传统元素结合在一起,以现代人的审美需求来打造富有传统韵味的事物,让传统艺术的脉络传承下去的具有中国特色的中国风格。总之,就是将传统的元素赋予现代的设计中,让人既体会到现代设计的科技性,又体会到传统的中国韵味。
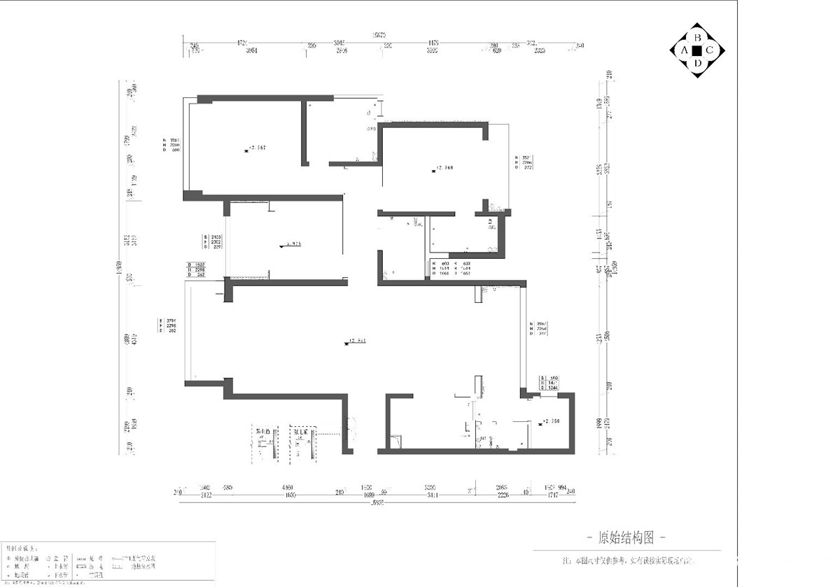
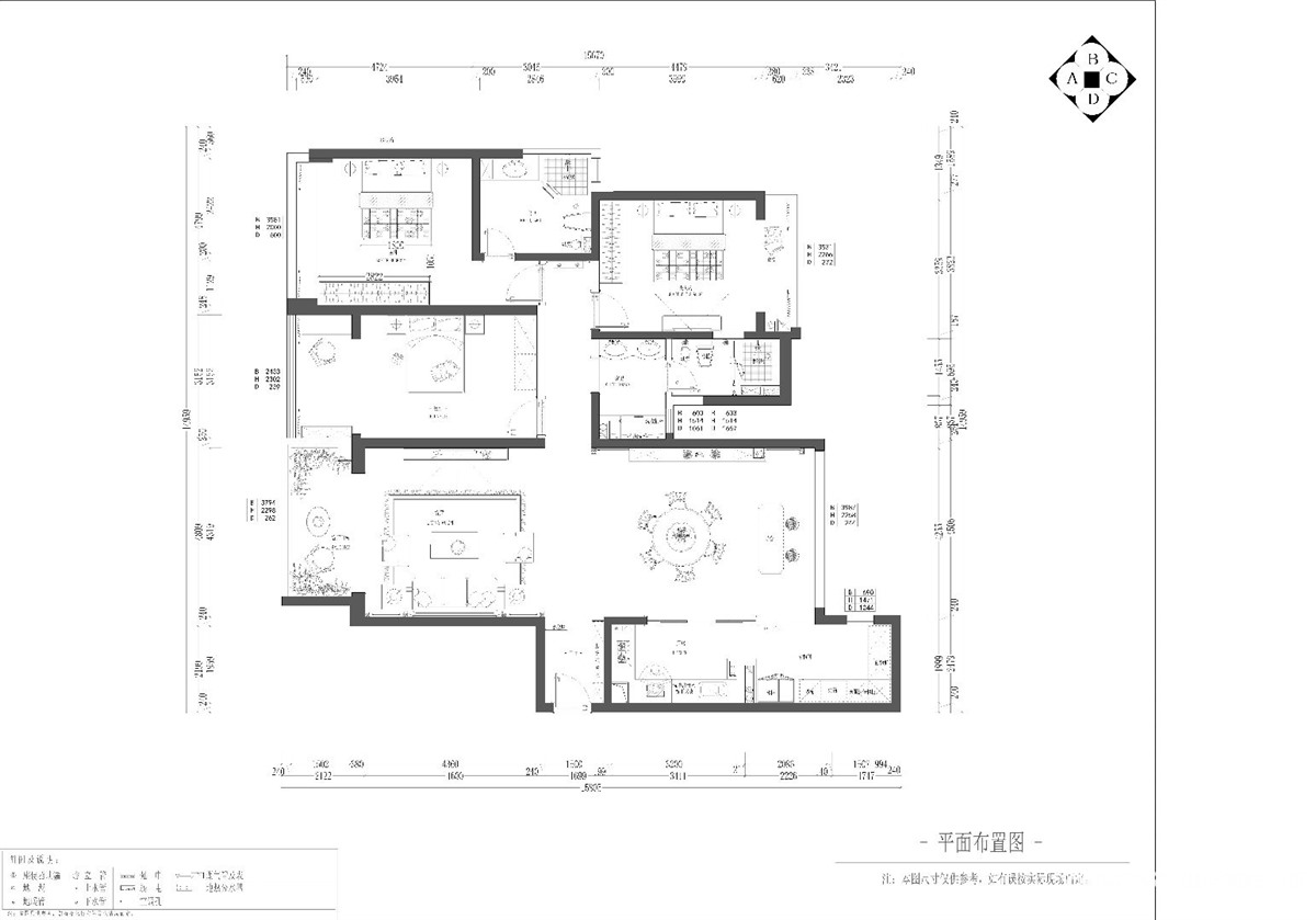
户型图

客厅




餐厅





京公安网备11010502040911