199㎡平层简欧风格金地湖城大境
发布时间:
2018年11月20日
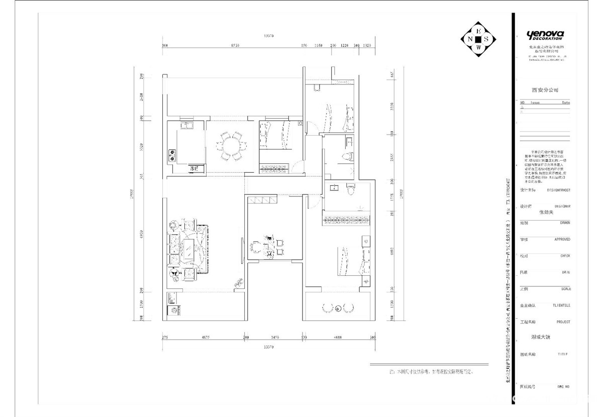
小区:金地湖城大境 面积:199㎡ 户型:平层 风格:简欧风格
设计说明
简欧风格继承了传统欧式风格的装饰特点,吸取了其风格的“形神”特征,本案在设计上追求空间变化的连续性和形体变化的层次感,室内多采用带有图案的壁纸、地毯、窗帘、床罩、帐幔及古典装饰画,体现华丽的风格。家具门窗多漆为白色,画框的线条部位装饰为线条或金边,在造型设计上既要突出凹凸感,又要有优美的弧线。
户型图

客厅






卧室

餐厅





京公安网备11010502040911