88㎡二居北欧风格赞城YOHO TOWN
发布时间:
2018年11月16日
小区:赞城YOHO TOWN 面积:88㎡ 户型:二居 风格:北欧风格
设计说明
回到自己温馨的小屋总是寻找一个安静的角落享受家庭生活的温馨,空间不大,但是还是能让人找到家的感觉。
自己的家是一个有品质、有格调,有生活情趣的地方。
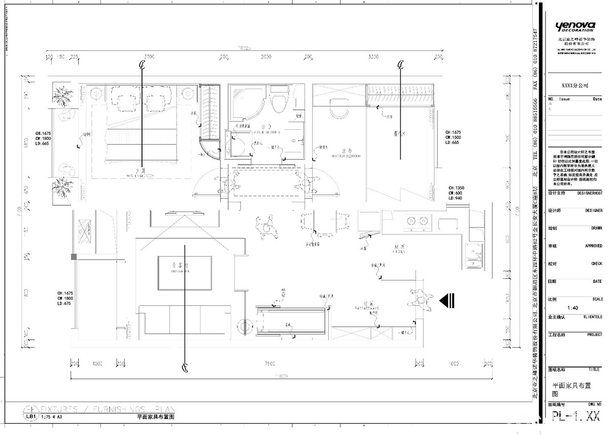
户型图

卧室



客厅


玄关

回到自己温馨的小屋总是寻找一个安静的角落享受家庭生活的温馨,空间不大,但是还是能让人找到家的感觉。
自己的家是一个有品质、有格调,有生活情趣的地方。






