85㎡二居北欧风格太原万科城
发布时间:
2018年11月16日
小区:太原万科城 面积:85㎡ 户型:二居 风格:北欧风格
设计说明
整个空间以高级灰为基调,辅以简单、大气,提升空间优雅、大方的氛围,并且点缀上热情活泼大气的蓝色黄色作点缀,营造出优雅、大气的生活空间,感受家的温暖。
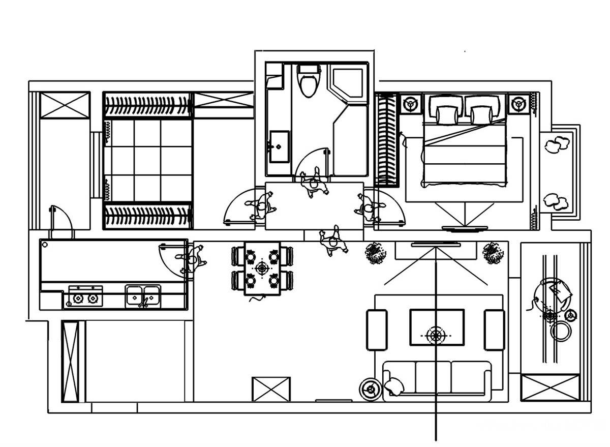
户型图

卧室

卫生间

客厅



整个空间以高级灰为基调,辅以简单、大气,提升空间优雅、大方的氛围,并且点缀上热情活泼大气的蓝色黄色作点缀,营造出优雅、大气的生活空间,感受家的温暖。





