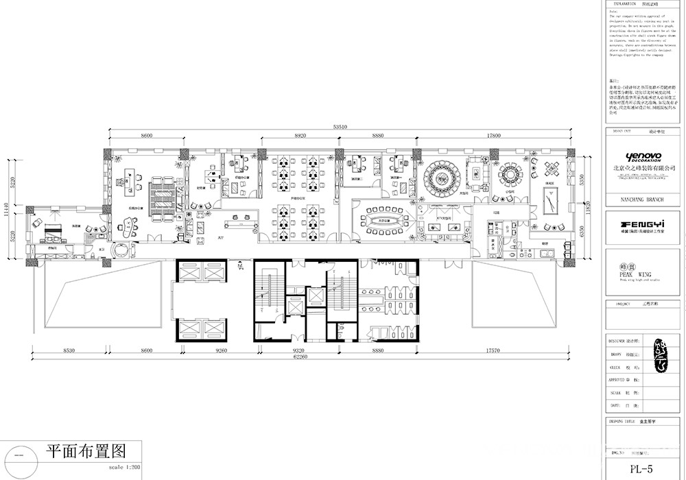
1000㎡办公空间现代简约风格南昌莱蒙都会
发布时间:
2018年11月16日
小区:南昌莱蒙都会 面积:1000㎡ 户型:办公空间 风格:现代简约风格
设计说明
此办公楼位于红谷滩莱蒙写字楼;风格倾向定位办公区现代简约、会所区美式古典,本案的设计重点,空间互通与交流,从设计手法上采用了从墙面上的线与面的衔接呼应,以及顶面的空间的虚拟划分,达到各功能空间融会贯通的目的。
户型图

卧室

客厅







书房


餐厅





京公安网备11010502040911