86㎡二居美式风格康华现代城
                  发布时间:
                  2018年11月15日
                
 小区:康华现代城 面积:86㎡ 户型:二居 风格:美式风格
设计说明
 初次跟男主人沟通,打算做成婚房,不喜欢太拘束,后跟女主人交谈,最终风格定位简约美式风格。本案原始的结构其实特别整齐,在没改动原始结构的情况下使客餐厅功能最大化。在小的卧室应用了整装设计实现了储藏空间最大化应用。从大自然跨度到家装届,冷色与暖色的搭配,是艺术对视觉的征服,是视觉观感对艺术美学的完美诠释,色彩产生的震撼惊艳让我们深深折服,这也造就了其自在、随意的不羁生活方式,没有太多造作的修饰与约束,不经意中也成就了另外一种休闲式的浪,这样更加贴合业主的个人喜好和审美。
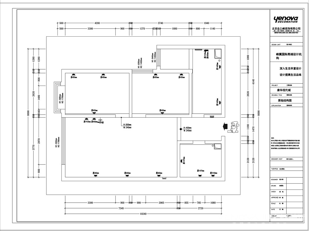
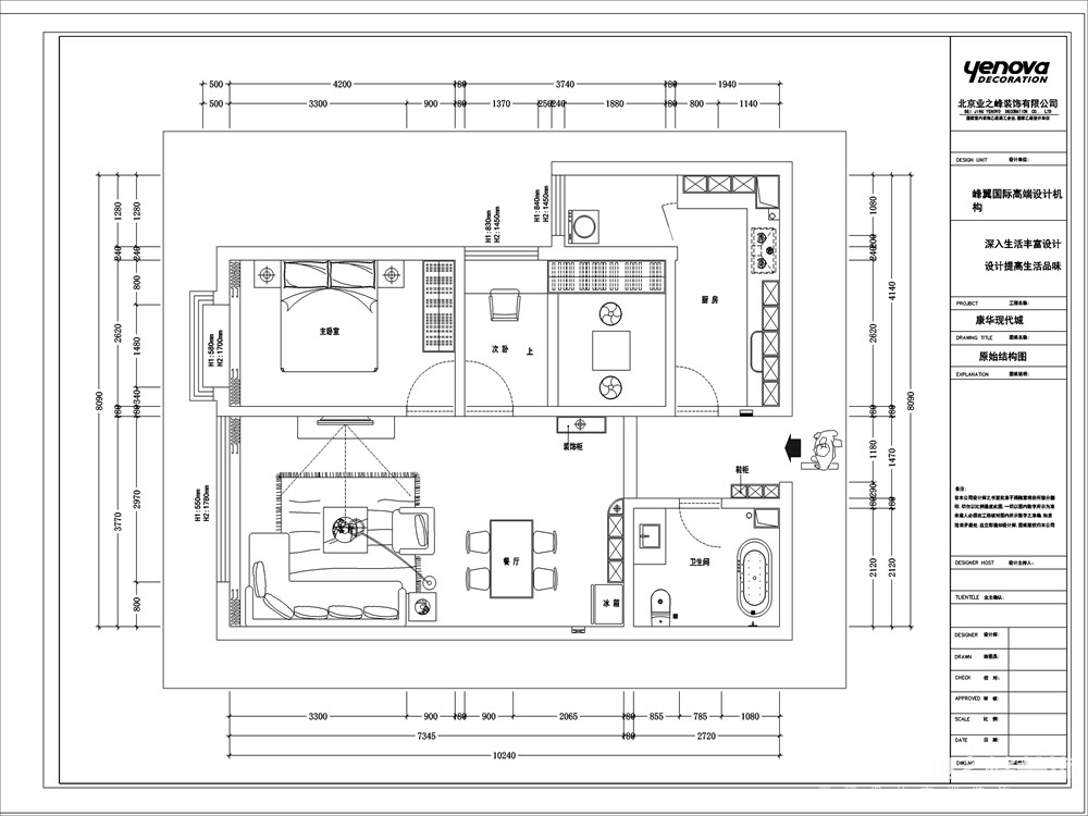
户型图
 
客厅
 


厨房
 
卧室
 


 


京公安网备11010502040911