160㎡平层现代简约风格绿地城
发布时间:
2018年10月12日
小区:绿地城 面积:160㎡ 户型:平层 风格:现代简约风格
设计说明
家是活生生的有机体,是我们的生命线。
随着时光流转,家会呼吸、会消耗,也会沉眠。
四季更替,犹如时钟滴答,每一季都带动出崭新的面貌,
让新鲜的活力荡漾在空气中。
夏天,光脚丫子欢快地跑进跑出,纱门砰砰开合;
冬天,靴子拖着笨重的步伐,在进门前跺几脚,甩掉冰雪。
年复一年,这样的场景在居所里不断循环,
一次又一次地再现,身居其中的人也有相应的改变。
一场关于家的故事由此才真正的开始上演。
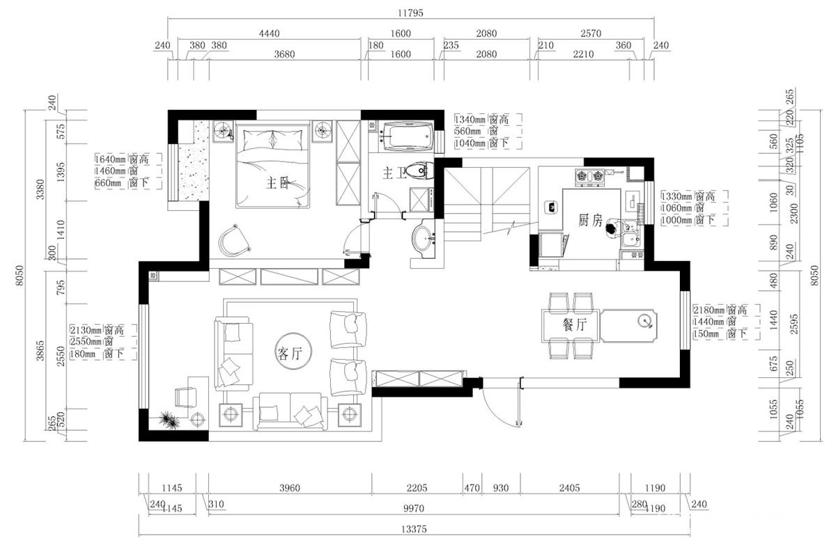
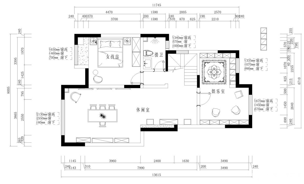
户型图

客厅






休闲区


卧室


玄关

餐厅





京公安网备11010502040911