400㎡复式现代简约风格白桦林明天
发布时间:
2018年10月12日
小区:白桦林明天 面积:400㎡ 户型:复式 风格:现代简约风格
设计说明
空间手法延续了现代、纯粹的设计语言
构建而成的内在静谧
雕塑出整个空间沉淀后的温润与朴实
现代人的生活情结在空间中得以展示出来
人们希望藉由空间这种外在的物质形态
给生活带来看不见的、内在的精神
因有精神,而凸显出空间的美好情怀
以一种成熟而收敛的方式从大环境中抽离出来
使整个空间立于纷繁,而静于内心。
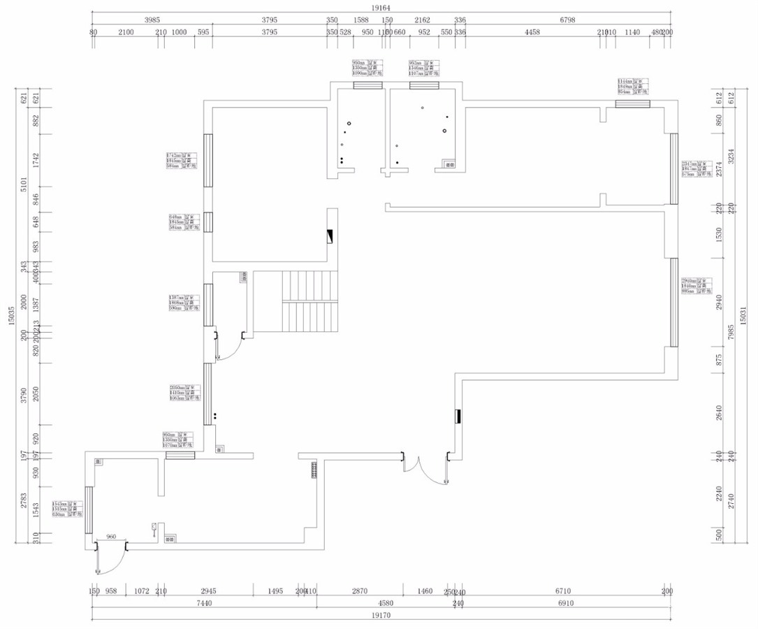
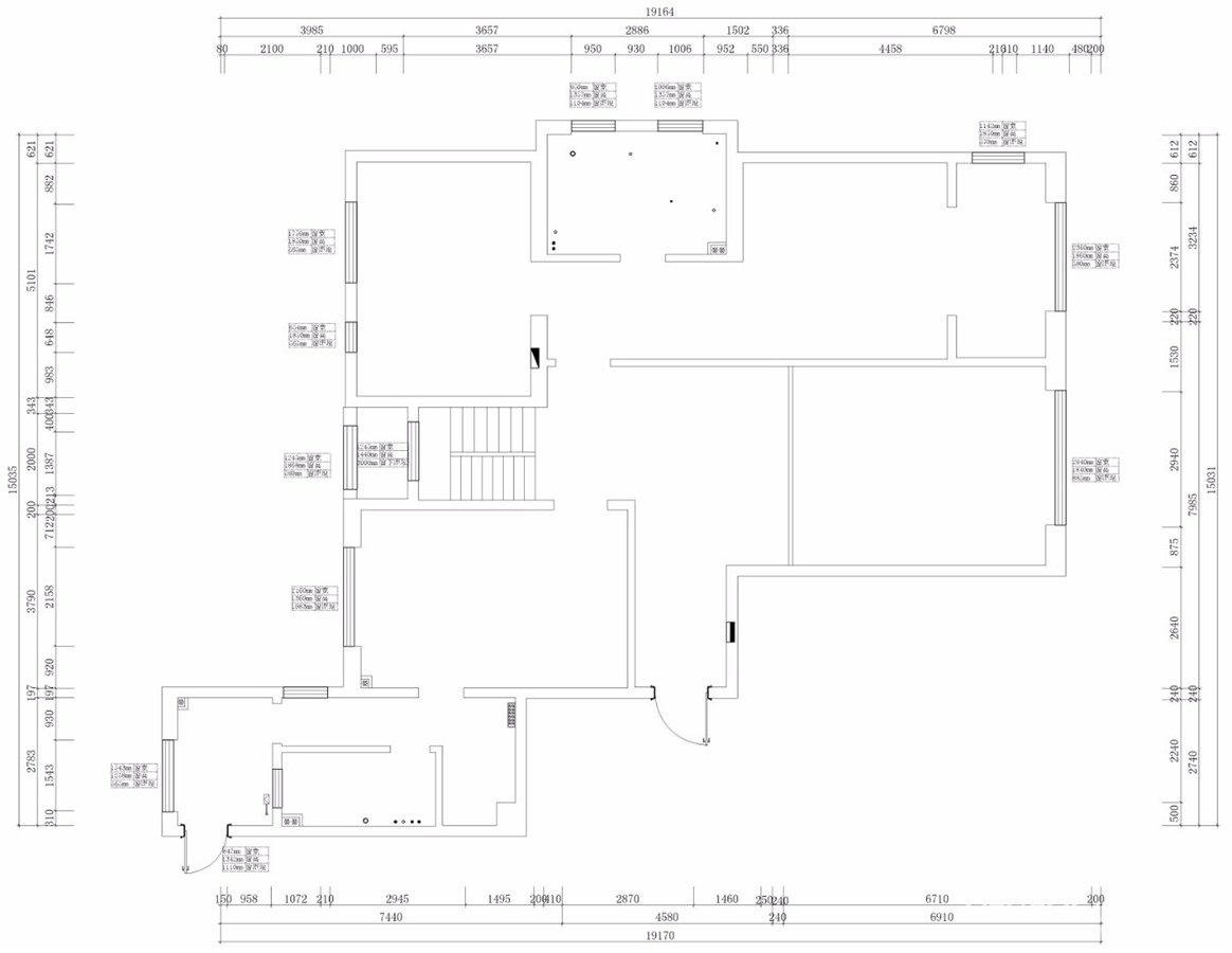
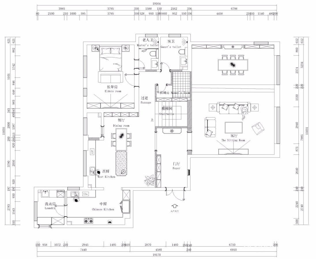
户型图

客厅







卫生间

卧室



休闲区

玄关

楼梯

儿童房

餐厅


厨房





京公安网备11010502040911