250㎡别墅龙湖锦璘原著
发布时间:
2018年10月10日
小区:龙湖锦璘原著 面积:250㎡ 户型:别墅 风格:
设计说明
本方案采用轻奢的设计理念,打造以灰色调点缀的欧式典雅风格,摒弃传统护墙板得到经典白色和橡木色,利用高级灰的点缀让整个空间像一只高冷的海鸟,空灵的游荡在浩瀚的海洋上。
轻奢的风格理念在材料上的运用更加讲究,不再高调的华丽和色彩的夺目,追求更多的是生活的清雅和舒适。
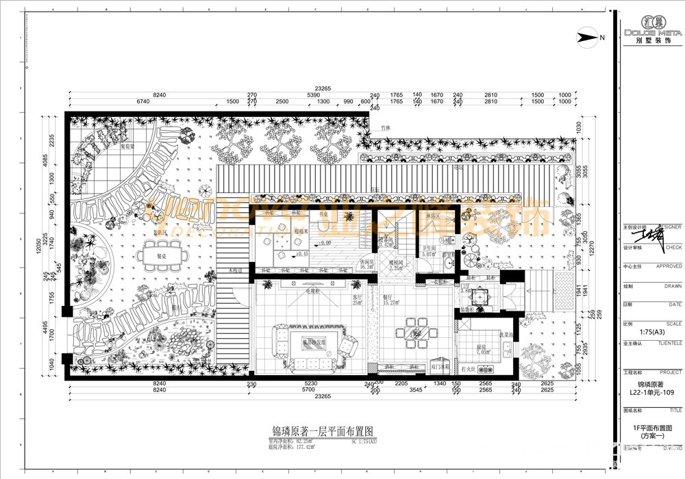
户型图

客厅





餐厅

玄关

书房

休闲区

儿童房





京公安网备11010502040911