360㎡别墅美式风格绿地泰晤士新城
发布时间:
2018年10月01日
小区:绿地泰晤士新城 面积:360㎡ 户型:别墅 风格:美式风格
设计说明
案例名称:美式风格 泰晤士新城别墅装修设计 小区:泰晤士新城 施工单位:别墅大宅设计业之峰装饰 设计师:刘晓儒
面积:360㎡ 基础预算:240000 主材预算:500000
材料说明:1进口. 德国都芳水性漆 飞利浦弱电 四川特变电工强电线 进口德国 德爱威防水 美国理想接线端子。 德国威森纳米ppr水管, 北京华翌联塑电线管。主材: 金牌厨柜 大自然木地板 TATA木门 汉斯格雅 大金空调 .西蒙开关面板。等等
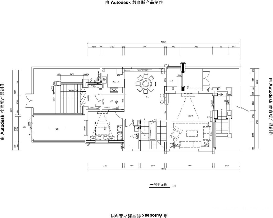
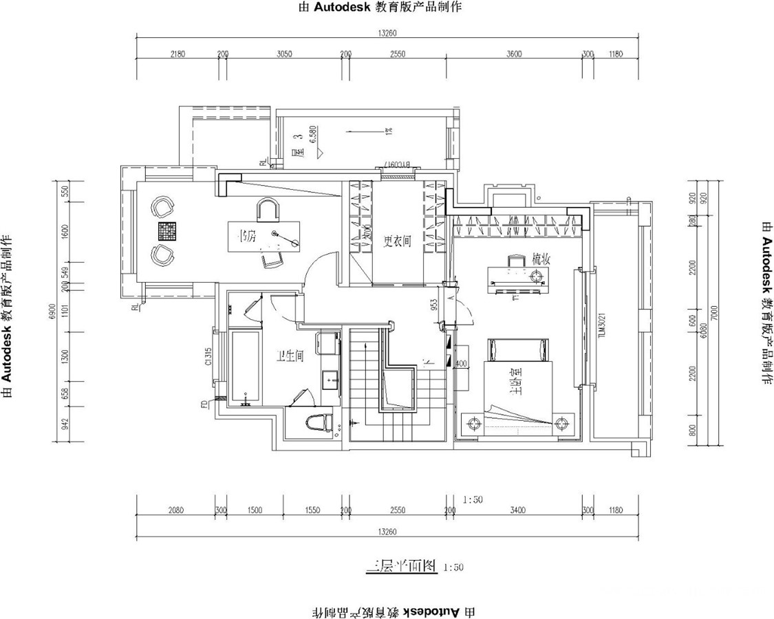
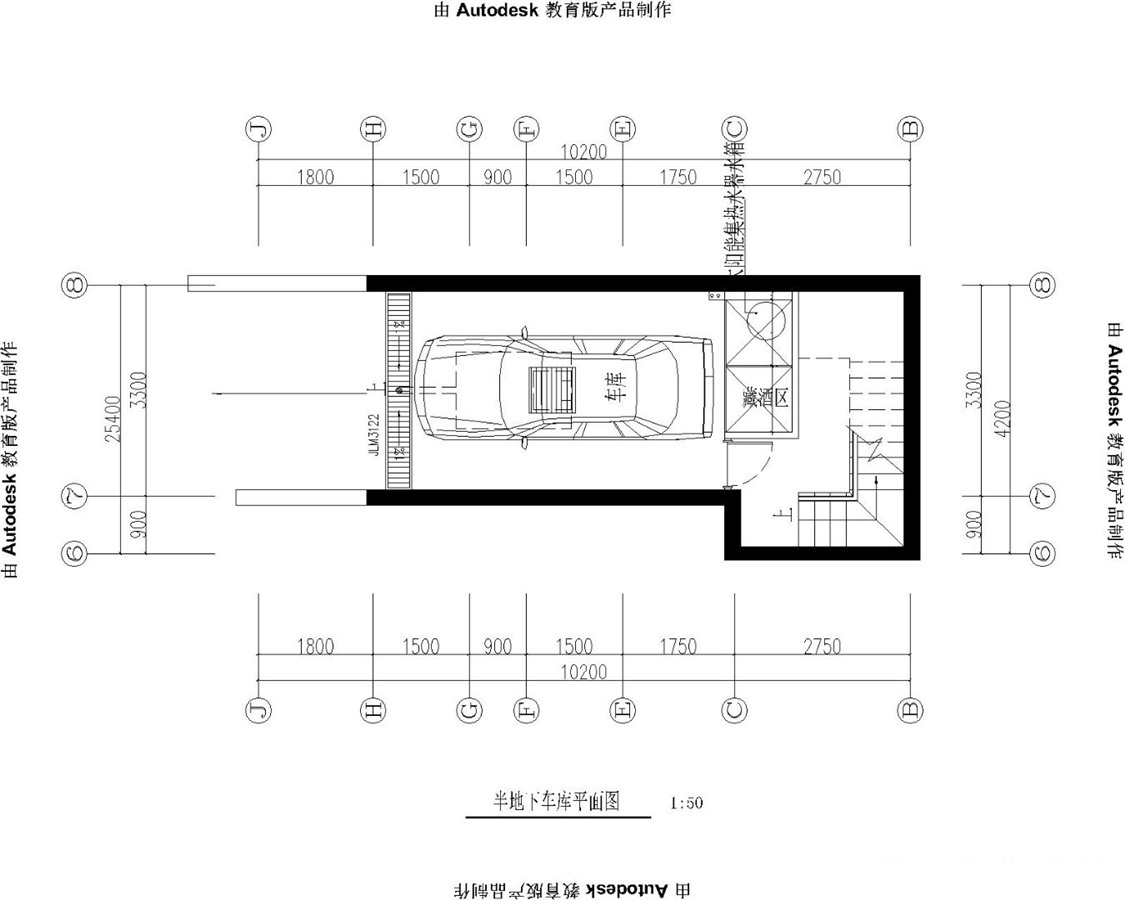
设计说明:美式风格反映出了美国人的日子心情,豪放不羁,安闲洒脱。现代美式风格更是将这个特点发挥到很好,全体计划空间简练明快,色彩光鲜。比方,用很多的石材和木饰面装饰,以木质自身的色彩为主,所谓的“原木色”,使得现代美式风格有着一种天然闲适之感。然后,在原木色的古典风仪中,将自个的共同风格和现代精力联络起来,全部空间呈现出多姿多彩,简练明快的样貌。当然,在现代美式风格的户型图 
客厅








卧室


餐厅





京公安网备11010502040911