120㎡三居简欧风格莱安逸珲
发布时间:
2018年09月30日
小区:莱安逸珲 面积:120㎡ 户型:三居 风格:简欧风格
设计说明
打造一个专为年轻人的富有情调的清新之家,表达业主对浪漫优雅的渴望。房子的整体设计开阔通畅。作为餐厅和厨房的隔断, 敞开式的拱形在原有形态下做了现代性的变异和改进,增加了整体空间的大气感,而隔断一边新增的照片墙也使墙面层次更加丰富,相对应的电视墙除了设计了个一个超大的壁炉解决电视的摆放外还有新增的装饰柜,体现了美式乡村风格中多存储空间的设计原则。整个空间的装饰均以木材、瓷砖等自然材料为主,配合色彩、形状和布局的整合,呈现出美观、实用的装饰特点,为了突出特定的区域,配合优雅的铁艺,具有美式风格的座椅及吊灯等成为装饰的主角。舒适、自然、清新
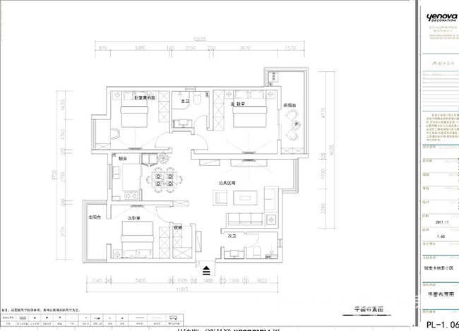
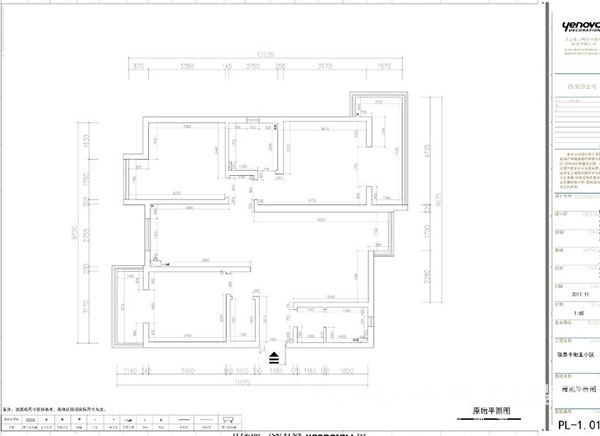
户型图

客厅





卧室

餐厅





京公安网备11010502040911