600㎡别墅现代简约风格蓝光观岭
发布时间:
2018年09月21日
小区:蓝光观岭 面积:600㎡ 户型:别墅 风格:现代简约风格
设计说明
成都业之峰装饰别墅装修设计案例,现代轻奢是一种生活与态度,当喧嚣与繁华褪去,期望有一片舒适与宁静,可以奢华但精致,可以华丽但纯粹,从细节处彰显对生活的追求与享受使用辅料:设计往往以高品质、设计感、舒适、简约为风格特点,但是它比极致简约风格更注重品质和设计感,常常折射出一种隐藏的贵族气质,给人时尚前卫、优雅,且不失温馨舒适的感觉,向人们透露着生活本真的自然和纯粹。
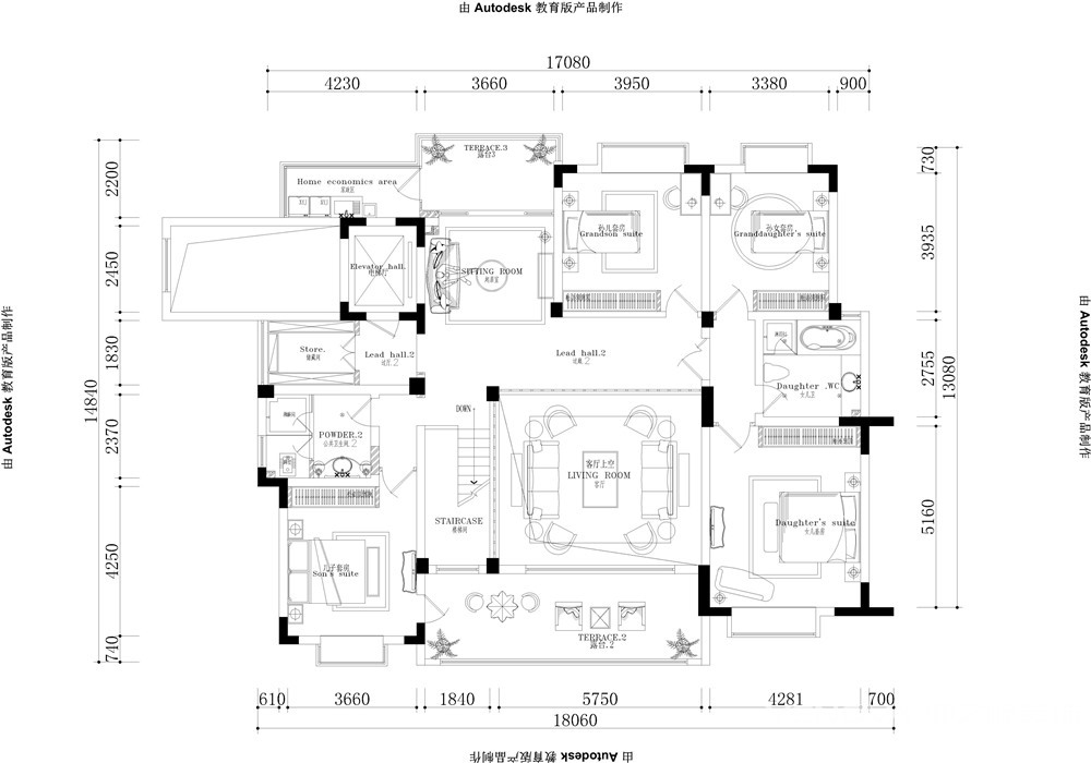
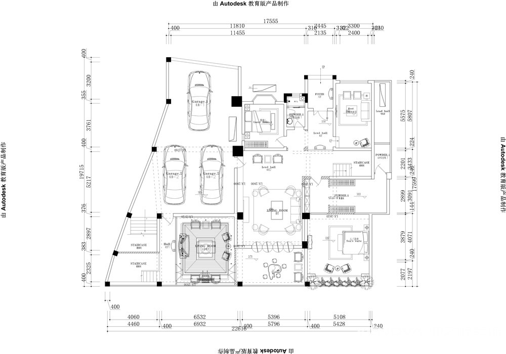
户型图

客厅



卧室


卫生间





京公安网备11010502040911